Maison neuve à
Cuisy
(77165) Référence :
CY2431932_1
Prix du projet : Maison avec Terrain
prix 311 000 €
- 5 pièces
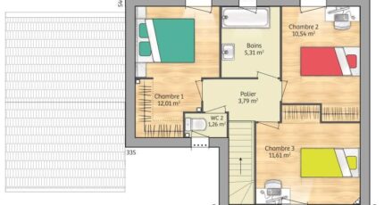
- 3 chambres
- Surface maison 90 m2
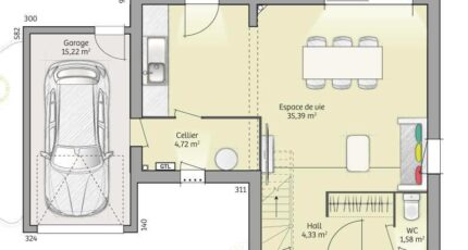
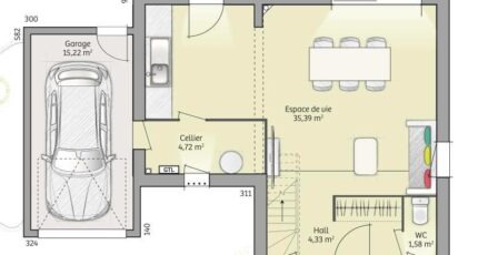
VENTE : maison de 5 pièces (90 m²) à Cuisy
MAISON 5 PIÈCES NEUVE - PROCHE DE MONTREUIL
À proximité du Transilien K (gare de Dammartin-Juilly-Saint-Mard, 30 min de Paris), en vente à Cuisy (77165), nous sommes heureux de vous proposer cette maison de 5 pièces de 90 m² et de 427 m² de terrain.
Cette maison comporte 2 niveaux. Son intérieur offre trois chambres, une cuisine et une salle de bains. La maison est neuve.
Il y a une école élémentaire dans le quartier. Niveau transports, on trouve quatre gares à moins de 10 minutes en voiture. On trouve un tennis dans les environs.
Elle est proposée à l'achat pour 311 000 €.
N'hésitez pas à prendre contact avec notre agence (Cedric YAHIAOUI : 06-66-57-00-63) pour plus de renseignements sur ce bien. Maisons France Confort Magny-le-Hongre vous accompagne dans tous vos projets immobiliers et dans toutes vos démarches.
Annonce proposée par un Agent Commercial Partenaire.
Mentions légales
Terrain proposé par un partenaire foncier selon disponibilités et autorisation de publicité au prix de 151 000 €. Hors droit d'enregistrement et frais de notaire. Terrain + Maison proposés au prix de 311 000 € (Hors branchements et raccordements, papiers peints, peintures, revêtement de sol dans les chambres. Tarif modifiable sans préavis). Etiquette énergie : A. Différents modèles disponibles pour ce terrain. Assurances et garanties du constructeur (RC professionnelle, décennale, dommage ouvrage, garantie de remboursement de l'acompte, livraison à prix et délai convenu) : https://www.maisons-france-confort.fr/mentions-legales/. HEXAOM Services est enregistré auprès de l'ORIAS en tant que Courtier en financement, Niveau 1, sous le numéro 14001345.Agence Maisons France Confort de Magny-le-Hongre (77700)
- Téléphone :
- 01 84 80 92 96
- Adressse :
- 11 rue de Courtalin
77700 Magny-le-Hongre, France
