Maison neuve à
Cuisy
(77165) Référence :
CY2431883_1
Prix du projet : Maison avec Terrain
prix 314 000 €
- 5 pièces
- 3 chambres
- Surface maison 90 m2
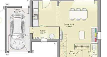
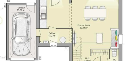
VENTE : maison de 5 pièces (90 m²) à Cuisy
PROCHE DE MONTREUIL - MAISON 5 PIÈCES NEUVE
À vendre : à côté de la gare de Dammartin-Juilly-Saint-Mard (Paris à 30 min par le Transilien K), à Cuisy (77165), nous vous présentons cette maison de 5 pièces de 90 m² et de 524 m² de terrain.
C'est une maison de 2 niveaux. Elle comporte trois chambres, une cuisine et une salle de bains. Cette maison est neuve.
Il y a une école élémentaire dans le quartier. Niveau transports en commun, on trouve quatre gares à moins de 10 minutes en voiture. On trouve un tennis à proximité.
Son prix de vente est de 314 000 €.
Prenez contact avec notre agence (Cedric YAHIAOUI : 06-66-57-00-63) pour plus de renseignements sur la maison, sur les démarches à suivre ou sur les modalités de vente. Maisons France Confort Magny-le-Hongre est là pour vous accompagner dans tous vos projets immobiliers.
Annonce proposée par un Agent Commercial Partenaire.
Mentions légales
Terrain proposé par un partenaire foncier selon disponibilités et autorisation de publicité au prix de 154 000 €. Hors droit d'enregistrement et frais de notaire. Terrain + Maison proposés au prix de 314 000 € (Hors branchements et raccordements, papiers peints, peintures, revêtement de sol dans les chambres. Tarif modifiable sans préavis). Etiquette énergie : A. Différents modèles disponibles pour ce terrain. Assurances et garanties du constructeur (RC professionnelle, décennale, dommage ouvrage, garantie de remboursement de l'acompte, livraison à prix et délai convenu) : https://www.maisons-france-confort.fr/mentions-legales/. HEXAOM Services est enregistré auprès de l'ORIAS en tant que Courtier en financement, Niveau 1, sous le numéro 14001345.Agence Maisons France Confort de Magny-le-Hongre (77700)
- Téléphone :
- 01 84 80 92 96
- Adressse :
- 11 rue de Courtalin
77700 Magny-le-Hongre, France
