Maison neuve à
Cuisy (77165) Référence : CY2431907_1

Prix du projet : Maison avec Terrain

prix 308 000 €

  • 5 pièces
  • 3 chambres
  • Surface maison 90 m2

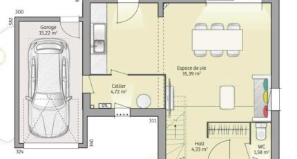
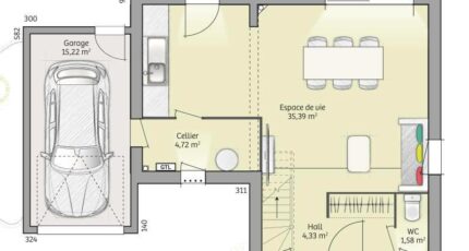
VENTE d'une maison F5 (90 m²) à Cuisy
MAISON 5 PIÈCES NEUVE - PROCHE DE MONTREUIL
À proximité de la gare de Dammartin-Juilly-Saint-Mard (Paris à 30 min avec le Transilien K), Maisons France Confort Magny-le-Hongre vous propose cette maison de 5 pièces de 90 m² et de 447 m² de terrain à Cuisy (77165).
Cette maison compte 2 niveaux. Son intérieur propose trois chambres, une cuisine et une salle de bains. La maison est neuve.
Une école élémentaire est implantée dans le quartier. Niveau transports, il y a quatre gares à moins de 10 minutes en voiture. On trouve un tennis à proximité.
Elle est à vendre pour la somme de 308 000 €.
Contactez Cedric YAHIAOUI (tél : 06-66-57-00-63) pour plus d'informations sur cette maison, sur les modalités de vente ou sur les démarches à suivre. Maisons France Confort Magny-le-Hongre vous accompagne dans tous vos projets immobiliers et dans toutes vos démarches.

Annonce proposée par un Agent Commercial Partenaire.

Mentions légales

Terrain proposé par un partenaire foncier selon disponibilités et autorisation de publicité au prix de 148 000 €. Hors droit d'enregistrement et frais de notaire. Terrain + Maison proposés au prix de 308 000 € (Hors branchements et raccordements, papiers peints, peintures, revêtement de sol dans les chambres. Tarif modifiable sans préavis). Etiquette énergie : A. Différents modèles disponibles pour ce terrain. Assurances et garanties du constructeur (RC professionnelle, décennale, dommage ouvrage, garantie de remboursement de l'acompte, livraison à prix et délai convenu) : https://www.maisons-france-confort.fr/mentions-legales/. HEXAOM Services est enregistré auprès de l'ORIAS en tant que Courtier en financement, Niveau 1, sous le numéro 14001345.

Contactez l'agence de Magny-le-Hongre

01 84 80 92 96

    * Champs obligatoires

    Vos informations sont traitées par HEXAOM et transmises à un conseiller commercial qui vous contactera afin de répondre à votre demande. Les plans et images présentés sur notre site sont la propriété d’HEXAOM et ne peuvent pas être reproduits sans son accord. Pour retrouver notre politique de protection des données personnelles et exercer vos droits conformément à la « loi informatique et liberté » cliquez-ici.