Maison neuve à
Cuisy (77165) Référence : CY2469221_1

Prix du projet : Maison avec Terrain

prix 329 000 €

  • 5 pièces
  • 3 chambres
  • Surface maison 80 m2

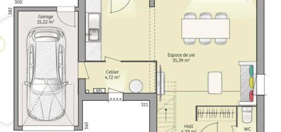
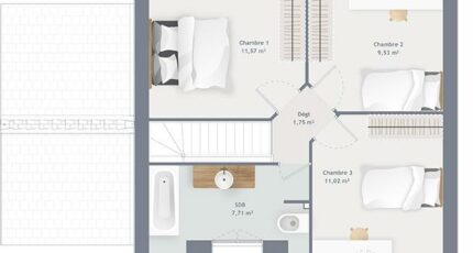
VENTE : maison F5 (80 m²) à Cuisy
IDÉALEMENT SITUÉE - MAISON 5 PIÈCES NEUVE
À côté de la gare de Dammartin-Juilly-Saint-Mard (Paris à 30 min avec le Transilien K), notre agence Maisons France Confort Mareuil-lès-Meaux est ravie de vous proposer à vendre, idéalement située dans Cuisy (77165), cette maison de 5 pièces de 80 m² et de 524 m² de terrain.
Cette maison possède 2 niveaux. Elle compte trois chambres, une cuisine et une salle de bains. La maison est neuve.
La maison se situe dans un secteur attractif. On y trouve une école élémentaire. Niveau transports, il y a quatre gares à moins de 10 minutes en voiture. On trouve un tennis à quelques minutes à peine.
Elle est proposée à l'achat pour 329 000 €.
N'hésitez pas à prendre contact avec notre agence (YAHIAOUI Cedric : 06-66-57-00-63) pour tout renseignement sur le bien ou sur les modalités de vente.

Annonce proposée par un Agent Commercial Partenaire.

Mentions légales

Terrain proposé par un partenaire foncier selon disponibilités et autorisation de publicité au prix de 139 000 €. Hors droit d'enregistrement et frais de notaire. Terrain + Maison proposés au prix de 329 000 € (Hors branchements et raccordements, papiers peints, peintures, revêtement de sol dans les chambres. Tarif modifiable sans préavis). Etiquette énergie : A. Différents modèles disponibles pour ce terrain. Assurances et garanties du constructeur (RC professionnelle, décennale, dommage ouvrage, garantie de remboursement de l'acompte, livraison à prix et délai convenu) : https://www.maisons-france-confort.fr/mentions-legales/. HEXAOM Services est enregistré auprès de l'ORIAS en tant que Courtier en financement, Niveau 1, sous le numéro 14001345.

Contactez l'agence de Mareuil-lès-Meaux

01 60 09 28 30

    * Champs obligatoires

    Vos informations sont traitées par HEXAOM et transmises à un conseiller commercial qui vous contactera afin de répondre à votre demande. Les plans et images présentés sur notre site sont la propriété d’HEXAOM et ne peuvent pas être reproduits sans son accord. Pour retrouver notre politique de protection des données personnelles et exercer vos droits conformément à la « loi informatique et liberté » cliquez-ici.