Maison neuve à
Cuisy (77165) Référence : FS2452538_1

Prix du projet : Maison avec Terrain

prix 299 000 €

  • 5 pièces
  • 3 chambres
  • Surface maison 90 m2

Cuisy : maison T5 (90 m²) en vente
IDÉALEMENT SITUÉE - MAISON 5 PIÈCES NEUVE
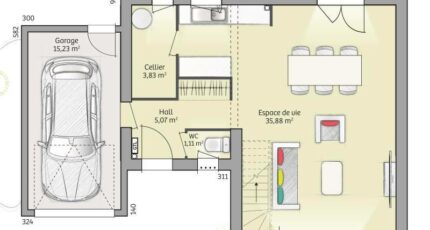
À deux pas de la gare de Dammartin-Juilly-Saint-Mard (Paris à 30 min par le Transilien K), venez découvrir cette maison de 5 pièces de 90 m² et de 415 m² de terrain en vente idéalement située dans Cuisy (77165). Son intérieur comporte trois chambres, une cuisine et une salle de bains.
Il s'agit d'une maison de 2 niveaux. Elle est neuve.
La maison est située dans un secteur attractif. Une école élémentaire y est implantée. Côté transports, il y a quatre gares à moins de 10 minutes en voiture. On trouve un tennis à quelques minutes du logement.
Son prix de vente est de 299 000 €.
Prenez contact avec notre agence (SOUMARMON Félix : 06-10-24-97-84) pour toute question sur la maison. Maisons France Confort Magny-le-Hongre vous accompagne dans tous vos projets immobiliers et dans toutes vos démarches.

Annonce proposée par un Agent Commercial Partenaire.

Mentions légales

Terrain proposé par un partenaire foncier selon disponibilités et autorisation de publicité au prix de 130 000 €. Hors droit d'enregistrement et frais de notaire. Terrain + Maison proposés au prix de 299 000 € (Hors branchements et raccordements, papiers peints, peintures, revêtement de sol dans les chambres. Tarif modifiable sans préavis). Etiquette énergie : A. Différents modèles disponibles pour ce terrain. Assurances et garanties du constructeur (RC professionnelle, décennale, dommage ouvrage, garantie de remboursement de l'acompte, livraison à prix et délai convenu) : https://www.maisons-france-confort.fr/mentions-legales/. HEXAOM Services est enregistré auprès de l'ORIAS en tant que Courtier en financement, Niveau 1, sous le numéro 14001345.

Contactez l'agence de Magny-le-Hongre

01 84 80 92 96

    * Champs obligatoires

    Vos informations sont traitées par HEXAOM et transmises à un conseiller commercial qui vous contactera afin de répondre à votre demande. Les plans et images présentés sur notre site sont la propriété d’HEXAOM et ne peuvent pas être reproduits sans son accord. Pour retrouver notre politique de protection des données personnelles et exercer vos droits conformément à la « loi informatique et liberté » cliquez-ici.