Maison neuve à
Esches (60110) Référence : CY2410913_2

Prix du projet : Maison avec Terrain

prix 282 000 €

  • 5 pièces
  • 3 chambres
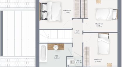
  • Surface maison 90 m2

VENTE d'une maison de 5 pièces (90 m²) à Esches
IDÉALEMENT SITUÉE - MAISON 5 PIÈCES NEUVE
À vendre : à deux pas de Cergy, idéalement située dans Esches (60110), notre agence Maisons France Confort Mareuil-lès-Meaux est heureuse de vous proposer cette maison de 5 pièces de 90 m².
Cette maison compte 2 niveaux. Elle est composée de trois chambres, d'une cuisine et d'une salle de bains. La maison est neuve.
Le terrain du bien est de 633 m².
Cette maison se situe dans un quartier attractif. Une école primaire y est implantée. Niveau transports en commun, il y a la gare Esches à moins de 10 minutes à pied. L'autoroute A16 est accessible à 1 km.
Elle est proposée à l'achat pour 282 000 €.
Contactez Cedric YAHIAOUI (06-66-57-00-63) pour tout renseignement sur la maison ou sur les démarches à suivre.

Annonce proposée par un Agent Commercial Partenaire.

Mentions légales

Terrain proposé par un partenaire foncier selon disponibilités et autorisation de publicité au prix de 120 000 €. Hors droit d'enregistrement et frais de notaire. Terrain + Maison proposés au prix de 282 000 € (Hors branchements et raccordements, papiers peints, peintures, revêtement de sol dans les chambres. Tarif modifiable sans préavis). Etiquette énergie : A. Différents modèles disponibles pour ce terrain. Assurances et garanties du constructeur (RC professionnelle, décennale, dommage ouvrage, garantie de remboursement de l'acompte, livraison à prix et délai convenu) : https://www.maisons-france-confort.fr/mentions-legales/. HEXAOM Services est enregistré auprès de l'ORIAS en tant que Courtier en financement, Niveau 1, sous le numéro 14001345.

Contactez l'agence de Mareuil-lès-Meaux

01 60 09 28 30

    * Champs obligatoires

    Vos informations sont traitées par HEXAOM et transmises à un conseiller commercial qui vous contactera afin de répondre à votre demande. Les plans et images présentés sur notre site sont la propriété d’HEXAOM et ne peuvent pas être reproduits sans son accord. Pour retrouver notre politique de protection des données personnelles et exercer vos droits conformément à la « loi informatique et liberté » cliquez-ici.