Maison neuve à
Esches (60110) Référence : CY2410930_1

Prix du projet : Maison avec Terrain

prix 262 500 €

  • 5 pièces
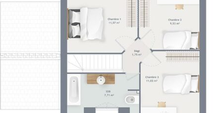
  • 3 chambres
  • Surface maison 80 m2

Esches : maison de 5 pièces (80 m²) à vendre
IDÉALEMENT SITUÉE - MAISON 5 PIÈCES NEUVE
En vente : située à quelques kilomètres de Cergy, laissez vous charmer par cette maison de 5 pièces de 80 m² idéalement située dans Esches (60110).
C'est une maison de 2 niveaux. Elle comporte trois chambres, une cuisine et une salle de bains. Cette maison est neuve.
Le terrain de la propriété s'étend sur 606 m².
La maison se situe dans un quartier recherché. Une école primaire y est implantée. Niveau transports en commun, il y a la gare Esches à moins de 10 minutes à pied. Il y a un accès à l'autoroute A16 à 1 km.
Elle est à vendre pour la somme de 262 500 €.
Prenez contact avec Cedric YAHIAOUI (06-66-57-00-63) pour obtenir de plus amples renseignements sur le bien. Maisons France Confort Mareuil-lès-Meaux est là pour vous accompagner dans tous vos projets immobiliers.

Annonce proposée par un Agent Commercial Partenaire.

Mentions légales

Terrain proposé par un partenaire foncier selon disponibilités et autorisation de publicité au prix de 118 500 €. Hors droit d'enregistrement et frais de notaire. Terrain + Maison proposés au prix de 262 500 € (Hors branchements et raccordements, papiers peints, peintures, revêtement de sol dans les chambres. Tarif modifiable sans préavis). Etiquette énergie : A. Différents modèles disponibles pour ce terrain. Assurances et garanties du constructeur (RC professionnelle, décennale, dommage ouvrage, garantie de remboursement de l'acompte, livraison à prix et délai convenu) : https://www.maisons-france-confort.fr/mentions-legales/. HEXAOM Services est enregistré auprès de l'ORIAS en tant que Courtier en financement, Niveau 1, sous le numéro 14001345.

Contactez l'agence de Mareuil-lès-Meaux

01 60 09 28 30

    * Champs obligatoires

    Vos informations sont traitées par HEXAOM et transmises à un conseiller commercial qui vous contactera afin de répondre à votre demande. Les plans et images présentés sur notre site sont la propriété d’HEXAOM et ne peuvent pas être reproduits sans son accord. Pour retrouver notre politique de protection des données personnelles et exercer vos droits conformément à la « loi informatique et liberté » cliquez-ici.