Maison neuve à
Everly
(77157) Référence :
CY2435762_1
Prix du projet : Maison avec Terrain
prix 222 700 €
- 5 pièces
- 3 chambres
- Surface maison 90 m2
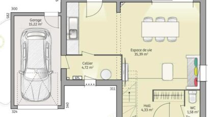
VENTE : maison de 5 pièces (90 m²) à Everly
MAISON 5 PIÈCES NEUVE - PROCHE DE SENS
En vente : à côté de la gare de Longueville (Paris à 1 h par le Transilien P), découvrez cette maison de 5 pièces de 90 m² et de 815 m² de terrain à Everly (77157).
Il s'agit d'une maison de 2 niveaux. Elle est composée de trois chambres, d'une cuisine et d'une salle de bains. Cette maison est neuve.
Une école élémentaire est implantée dans le quartier. Niveau transports, il y a les gares Longueville, Sainte-Colombe Septveilles et Champbenoist-Poigny à moins de 10 minutes en voiture. On trouve un tennis et une boulangerie à quelques minutes à peine.
Elle est à vendre pour la somme de 222 700 €.
N'hésitez pas à prendre contact avec Cedric YAHIAOUI (tél : 06-66-57-00-63) pour tout renseignement sur cette maison. Maisons France Confort Magny-le-Hongre vous accompagne à toutes les étapes de votre projet et dans tous vos projets immobiliers.
Annonce proposée par un Agent Commercial Partenaire.
Mentions légales
Terrain proposé par un partenaire foncier selon disponibilités et autorisation de publicité au prix de 62 700 €. Hors droit d'enregistrement et frais de notaire. Terrain + Maison proposés au prix de 222 700 € (Hors branchements et raccordements, papiers peints, peintures, revêtement de sol dans les chambres. Tarif modifiable sans préavis). Etiquette énergie : A. Différents modèles disponibles pour ce terrain. Assurances et garanties du constructeur (RC professionnelle, décennale, dommage ouvrage, garantie de remboursement de l'acompte, livraison à prix et délai convenu) : https://www.maisons-france-confort.fr/mentions-legales/. HEXAOM Services est enregistré auprès de l'ORIAS en tant que Courtier en financement, Niveau 1, sous le numéro 14001345.Agence Maisons France Confort de Magny-le-Hongre (77700)
- Téléphone :
- 01 84 80 92 96
- Adressse :
- 11 rue de Courtalin
77700 Magny-le-Hongre, France
