Maison neuve à
Évreux
(27000) Référence :
MB2400391_4
Prix du projet : Maison avec Terrain
prix 215 360 €
- 6 pièces
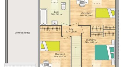
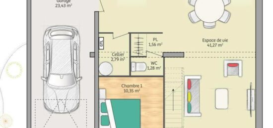
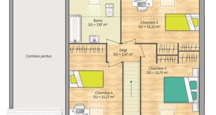
- 4 chambres
- Surface maison 89 m2
VENTE d'une maison F6 (89 m²) à Guichainville
EMPLACEMENT PRIVILÉGIÉ - MAISON 6 PIÈCES NEUVE
En vente : à 5 km d'Évreux, bénéficiant d'un emplacement d'exception dans Guichainville (27930), nous sommes heureux de vous proposer cette maison de 6 pièces de 89 m² et de 800 m² de terrain. Elle est composée de quatre chambres, d'une cuisine et d'une salle de bains.
Cette maison comporte 2 niveaux. Elle est neuve.
Cette maison se trouve dans un secteur prisé. On y trouve des établissements scolaires primaires. Côté transports, il y a la gare Évreux Normandie à moins de 10 minutes en voiture. Les nationales N13 et N154 sont accessibles à moins de 3 km. On trouve un tennis, cinq commerces et une boulangerie à proximité.
Elle est à vendre pour la somme de 215 360 €.
N'hésitez pas à prendre contact avec notre agence (BESNARD Mickael : 06-15-50-56-87) pour obtenir de plus amples informations sur la maison. Maisons France Confort Vernon vous accompagne dans tous vos projets immobiliers et à toutes les étapes de l'achat.
Annonce proposée par un Agent Commercial Partenaire.
Mentions légales
Terrain proposé par un partenaire foncier selon disponibilités et autorisation de publicité au prix de 42 000 €. Hors droit d'enregistrement et frais de notaire. Terrain + Maison proposés au prix de 215 360 € (Hors branchements et raccordements, papiers peints, peintures, revêtement de sol dans les chambres. Tarif modifiable sans préavis). Etiquette énergie : A. Différents modèles disponibles pour ce terrain. Assurances et garanties du constructeur (RC professionnelle, décennale, dommage ouvrage, garantie de remboursement de l'acompte, livraison à prix et délai convenu) : https://www.maisons-france-confort.fr/mentions-legales/. HEXAOM Services est enregistré auprès de l'ORIAS en tant que Courtier en financement, Niveau 1, sous le numéro 14001345.Agence Maisons France Confort de Vernon (27200)
- Téléphone :
- 02 32 51 45 05
- Adressse :
- 38 rue Carnot
27200 Vernon, France
