Maison neuve à
Guichainville
(27930) Référence :
MB2400352_4
Prix du projet : Maison avec Terrain
prix 215 360 €
- 6 pièces
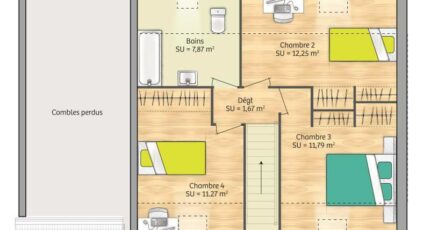
- 4 chambres
- Surface maison 89 m2
Maison de 6 pièces (89 m²) en vente à Guichainville
EMPLACEMENT PRIVILÉGIÉ - MAISON 6 PIÈCES NEUVE
En vente à 5 km d'Évreux, votre agence Maisons France Confort Vernon est heureuse de vous présenter cette maison de 6 pièces de 89 m² et de 850 m² de terrain bénéficiant d'un emplacement d'exception dans Guichainville (27930).
Il s'agit d'une maison de 2 niveaux. Elle est composée de quatre chambres, d'une cuisine et d'une salle de bains. Cette maison est neuve.
La maison est située dans un quartier prisé. On y trouve des établissements scolaires primaires. Niveau transports en commun, il y a la gare Évreux Normandie à moins de 10 minutes en voiture. Les nationales N13 et N154 sont accessibles à moins de 3 km. On trouve un tennis, plusieurs commerces et une boulangerie à quelques minutes de la maison.
Son prix de vente est de 211 360 €.
Prenez contact avec Mickael BESNARD (06-15-50-56-87) pour tout renseignement sur la maison, sur les démarches à suivre ou sur les modalités de vente. Maisons France Confort Vernon vous accompagne à toutes les étapes de votre projet et dans tous vos projets immobiliers.
Annonce proposée par un Agent Commercial Partenaire.
Mentions légales
Terrain proposé par un partenaire foncier selon disponibilités et autorisation de publicité au prix de 42 000 €. Hors droit d'enregistrement et frais de notaire. Terrain + Maison proposés au prix de 215 360 € (Hors branchements et raccordements, papiers peints, peintures, revêtement de sol dans les chambres. Tarif modifiable sans préavis). Etiquette énergie : A. Différents modèles disponibles pour ce terrain. Assurances et garanties du constructeur (RC professionnelle, décennale, dommage ouvrage, garantie de remboursement de l'acompte, livraison à prix et délai convenu) : https://www.maisons-france-confort.fr/mentions-legales/. HEXAOM Services est enregistré auprès de l'ORIAS en tant que Courtier en financement, Niveau 1, sous le numéro 14001345.Agence Maisons France Confort de Vernon (27200)
- Téléphone :
- 02 32 51 45 05
- Adressse :
- 38 rue Carnot
27200 Vernon, France
