Maison neuve à
Guichainville
(27930) Référence :
PV2487664_1
Prix du projet : Maison avec Terrain
prix 232 000 €
- 6 pièces
- 4 chambres
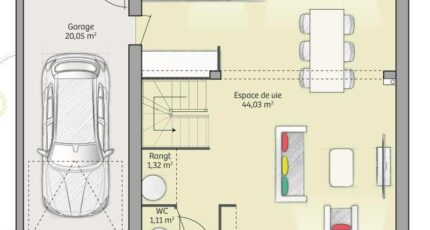
- Surface maison 91 m2
VENTE d'une maison de 6 pièces (91 m²) à Guichainville
PROCHE D'ÉVREUX - MAISON 6 PIÈCES NEUVE
À deux pas d'Évreux, à vendre à Guichainville (27930), Maisons France Confort Gravigny vous propose cette maison de 6 pièces de 91 m².
Il s'agit d'une maison de 2 niveaux. Elle compte quatre chambres, une cuisine et une salle de bains. La maison est neuve.
Le terrain de la propriété s'étend sur 477 m².
Des établissements scolaires primaires sont implantés dans le quartier. Côté transports, il y a la gare Évreux Normandie à moins de 10 minutes en voiture. Les nationales N13 et N154 sont accessibles à moins de 3 km. On trouve un tennis et plusieurs commerces à quelques minutes.
Elle est proposée à l'achat pour 232 000 €.
Contactez notre agence (Philippe VERNE : 02-32-33-40-77) pour toute information sur la maison, sur les démarches à suivre ou sur les modalités de vente. Maisons France Confort Gravigny vous accompagne dans tous vos projets immobiliers et à toutes les étapes de l'achat.
Annonce proposée par un Agent Commercial Partenaire.
Mentions légales
Terrain proposé par un partenaire foncier selon disponibilités et autorisation de publicité au prix de 61 000 €. Hors droit d'enregistrement et frais de notaire. Terrain + Maison proposés au prix de 232 000 € (Hors branchements et raccordements, papiers peints, peintures, revêtement de sol dans les chambres. Tarif modifiable sans préavis). Etiquette énergie : A. Différents modèles disponibles pour ce terrain. Assurances et garanties du constructeur (RC professionnelle, décennale, dommage ouvrage, garantie de remboursement de l'acompte, livraison à prix et délai convenu) : https://www.maisons-france-confort.fr/mentions-legales/. HEXAOM Services est enregistré auprès de l'ORIAS en tant que Courtier en financement, Niveau 1, sous le numéro 14001345.Agence Maisons France Confort de Gravigny (27930)
- Téléphone :
- 02 32 33 40 77
- Adressse :
- 114 D, avenue Aristide Briand
27930 Gravigny, France
