Maison neuve à
Féricy (77133) Référence : DC2495315_1

Prix du projet : Maison avec Terrain

prix 290 699 €

  • 5 pièces
  • 3 chambres
  • Surface maison 80 m2

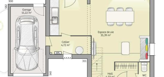
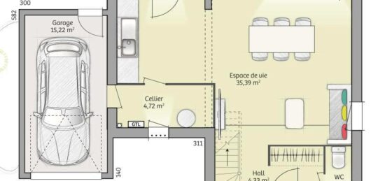
VENTE d'une maison de 5 pièces (80 m²) à Féricy
PROCHE DE CORBEIL-ESSONNES - MAISON 5 PIÈCES NEUVE
À quelques minutes de la gare de Fontainebleau-Avon (Paris à 40 min avec le Transilien R), notre agence Maisons France Confort Melun est ravie de vous proposer cette maison de 5 pièces de 80 m² et de 403 m² de terrain à Féricy (77133). Son intérieur comporte trois chambres, une cuisine et une salle de bains.
Cette maison compte 2 niveaux. Elle est neuve.
On trouve une école élémentaire dans le quartier. Côté transports en commun, il y a 11 gares à moins de 10 minutes en voiture. Il y a une bibliothèque à proximité.
Son prix de vente est de 290 699 €.
Contactez David CORDIER (tél : 06-10-79-38-15) pour toute information sur cette maison, sur les démarches à suivre ou sur les modalités de vente. Maisons France Confort Melun est là pour vous accompagner à toutes les étapes de votre projet.

Annonce proposée par un Agent Commercial Partenaire.

Mentions légales

Terrain proposé par un partenaire foncier selon disponibilités et autorisation de publicité au prix de 82 000 €. Hors droit d'enregistrement et frais de notaire. Terrain + Maison proposés au prix de 290 699 € (Hors branchements et raccordements, papiers peints, peintures, revêtement de sol dans les chambres. Tarif modifiable sans préavis). Etiquette énergie : A. Différents modèles disponibles pour ce terrain. Assurances et garanties du constructeur (RC professionnelle, décennale, dommage ouvrage, garantie de remboursement de l'acompte, livraison à prix et délai convenu) : https://www.maisons-france-confort.fr/mentions-legales/. HEXAOM Services est enregistré auprès de l'ORIAS en tant que Courtier en financement, Niveau 1, sous le numéro 14001345.

Contactez l'agence de Melun

01 64 14 43 20

    * Champs obligatoires

    Vos informations sont traitées par HEXAOM et transmises à un conseiller commercial qui vous contactera afin de répondre à votre demande. Les plans et images présentés sur notre site sont la propriété d’HEXAOM et ne peuvent pas être reproduits sans son accord. Pour retrouver notre politique de protection des données personnelles et exercer vos droits conformément à la « loi informatique et liberté » cliquez-ici.