Maison neuve à
Machault (77133) Référence : CY2430194_1

Prix du projet : Maison avec Terrain

prix 271 000 €

  • 5 pièces
  • 3 chambres
  • Surface maison 90 m2

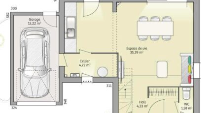
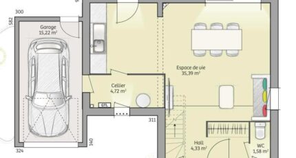
VENTE : maison de 5 pièces (90 m²) à Machault
MAISON 5 PIÈCES NEUVE - PROCHE DE MELUN
À deux pas de la gare de Saint-Mammès (Paris à 50 min par le Transilien R), laissez vous charmer par cette maison de 5 pièces de 90 m² et de 406 m² de terrain en vente à Machault (77133).
C'est une maison de 2 niveaux. Elle inclut trois chambres, une cuisine et une salle de bains. Cette maison est neuve.
Des écoles de tous types (de la maternelle au lycée) sont implantées à moins de 10 minutes en voiture, tout comme sept crèches à moins de 10 minutes à pied. Côté transports, on trouve 10 gares à moins de 10 minutes en voiture. Il y a des tennis, des bibliothèques, trois bassins de natation, des boulangeries, des commerces, des supermarchés, des épiceries et des boucheries-charcuteries à proximité. 3 marchés animent les environs.
Elle est proposée à l'achat pour 271 000 €.
Contactez notre agence (Cedric YAHIAOUI : 06-66-57-00-63) pour tout renseignement sur la maison ou sur les modalités de vente.

Annonce proposée par un Agent Commercial Partenaire.

Mentions légales

Terrain proposé par un partenaire foncier selon disponibilités et autorisation de publicité au prix de 111 000 €. Hors droit d'enregistrement et frais de notaire. Terrain + Maison proposés au prix de 271 000 € (Hors branchements et raccordements, papiers peints, peintures, revêtement de sol dans les chambres. Tarif modifiable sans préavis). Etiquette énergie : A. Différents modèles disponibles pour ce terrain. Assurances et garanties du constructeur (RC professionnelle, décennale, dommage ouvrage, garantie de remboursement de l'acompte, livraison à prix et délai convenu) : https://www.maisons-france-confort.fr/mentions-legales/. HEXAOM Services est enregistré auprès de l'ORIAS en tant que Courtier en financement, Niveau 1, sous le numéro 14001345.

Contactez l'agence de Magny-le-Hongre

01 84 80 92 96

    * Champs obligatoires

    Vos informations sont traitées par HEXAOM et transmises à un conseiller commercial qui vous contactera afin de répondre à votre demande. Les plans et images présentés sur notre site sont la propriété d’HEXAOM et ne peuvent pas être reproduits sans son accord. Pour retrouver notre politique de protection des données personnelles et exercer vos droits conformément à la « loi informatique et liberté » cliquez-ici.