Maison neuve à
Fublaines
(77470) Référence :
FS2453263_2
Prix du projet : Maison avec Terrain
prix 377 000 €
- 5 pièces
- 4 chambres
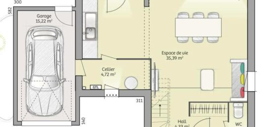
- Surface maison 113 m2
Maison T5 (113 m²) en vente à Fublaines
EMPLACEMENT PRIVILÉGIÉ - MAISON 5 PIÈCES NEUVE
À proximité du Transilien P (gare de Trilport, 30 min de Paris), nous vous proposons cette maison de 5 pièces de plain-pied de 113 m² et de 1 790 m² de terrain bénéficiant d'un emplacement privilégié dans Fublaines (77470). Son intérieur inclut quatre chambres, une cuisine et deux salles de bains.
La maison est neuve.
Cette maison se trouve dans un quartier prisé. Il y a l'École Primaire la Colline à moins de 10 minutes à pied. Niveau transports en commun, on trouve neuf gares à moins de 10 minutes en voiture. On trouve une épicerie dans les environs.
Elle est à vendre pour la somme de 377 000 €.
Prenez contact avec notre agence (SOUMARMON Félix : 06-10-24-97-84) pour plus d'informations sur la maison.
Annonce proposée par un Agent Commercial Partenaire.
Mentions légales
Terrain proposé par un partenaire foncier selon disponibilités et autorisation de publicité au prix de 145 000 €. Hors droit d'enregistrement et frais de notaire. Terrain + Maison proposés au prix de 377 000 € (Hors branchements et raccordements, papiers peints, peintures, revêtement de sol dans les chambres. Tarif modifiable sans préavis). Etiquette énergie : A. Différents modèles disponibles pour ce terrain. Assurances et garanties du constructeur (RC professionnelle, décennale, dommage ouvrage, garantie de remboursement de l'acompte, livraison à prix et délai convenu) : https://www.maisons-france-confort.fr/mentions-legales/. HEXAOM Services est enregistré auprès de l'ORIAS en tant que Courtier en financement, Niveau 1, sous le numéro 14001345.Agence Maisons France Confort de Mareuil-lès-Meaux (77100)
- Téléphone :
- 01 60 09 28 30
- Adressse :
- Domexpo Est Village La Hayette
77100 Mareuil-lès-Meaux, France
