Maison neuve à
Grandcamp-Maisy
(14450) Référence :
JS2485592_2
Prix du projet : Maison avec Terrain
prix 203 100 €
- 5 pièces
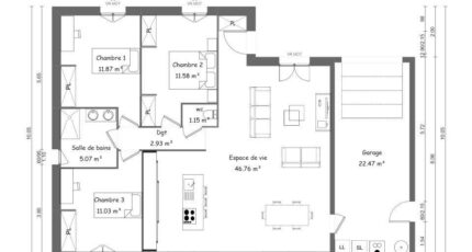
- 3 chambres
- Surface maison 95 m2
Maison de 5 pièces (95 m²) en vente à Grandcamp-Maisy
IDÉALEMENT SITUÉE - MAISON 5 PIÈCES NEUVE
En vente : votre agence Maisons France Confort Bayeux est ravie de vous proposer, idéalement située dans Grandcamp-Maisy (14450), cette maison de 5 pièces de plain-pied de 95 m².
Son intérieur propose trois chambres, une cuisine et deux salles de bains. La maison est neuve.
Le terrain de la propriété est de 319 m².
Cette maison est située dans un quartier recherché. L'École Primaire Jean Marion se trouve à moins de 10 minutes à pied. La nationale N13 est accessible à 6 km. Il y a un port de plaisance, deux tennis, des commerces, une poissonnerie et une boucherie-charcuterie dans les environs.
Son prix de vente est de 203 100 €.
Contactez Emilie HUE (tél : 06-29-81-46-66) pour tout renseignement sur la maison.
Annonce proposée par un Agent Commercial Partenaire.
Mentions légales
Terrain proposé par un partenaire foncier selon disponibilités et autorisation de publicité au prix de 48 100 €. Hors droit d'enregistrement et frais de notaire. Terrain + Maison proposés au prix de 203 100 € (Hors branchements et raccordements, papiers peints, peintures, revêtement de sol dans les chambres. Tarif modifiable sans préavis). Etiquette énergie : A. Différents modèles disponibles pour ce terrain. Assurances et garanties du constructeur (RC professionnelle, décennale, dommage ouvrage, garantie de remboursement de l'acompte, livraison à prix et délai convenu) : https://www.maisons-france-confort.fr/mentions-legales/. HEXAOM Services est enregistré auprès de l'ORIAS en tant que Courtier en financement, Niveau 1, sous le numéro 14001345.Agence Maisons France Confort de Bayeux (14400)
- Téléphone :
- 02 31 51 20 91
- Adressse :
- 2, rue Saint Loup
14400 Bayeux, France
