Maison neuve à
Isigny-sur-Mer
(14230) Référence :
JS2484892_2
Prix du projet : Maison avec Terrain
prix 189 844 €
- 5 pièces
- 3 chambres
- Surface maison 95 m2
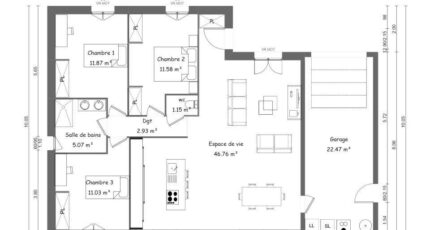
Maison de 5 pièces (95 m²) en vente à Isigny-sur-Mer
IDÉALEMENT SITUÉE - MAISON 5 PIÈCES NEUVE
À vendre : idéalement située dans Isigny-sur-Mer (14230), nous sommes ravis de vous présenter cette maison de 5 pièces de plain-pied de 95 m² et de 427 m² de terrain.
Elle se divise en trois chambres, une cuisine et deux salles de bains. La maison est neuve.
Cette maison se trouve dans un secteur attractif. Il y a l'École Primaire Jacques Prévert, le Collège du Val d'Aure et le Collège du Marais à moins de 10 minutes en voiture. Niveau transports, on trouve la gare Lison à proximité. Les nationales N13 et N174 sont accessibles à moins de 8 km. Il y a un port de plaisance, des tennis, deux bibliothèques, un bassin de natation, des commerces, des boucheries-charcuteries, deux bureaux de poste, quatre poissonneries et des épiceries à quelques minutes du logement. Enfin, 2 marchés animent le quartier.
Elle est à vendre pour la somme de 189 844 €.
Prenez contact avec notre agence (Emilie HUE : 06-29-81-46-66) pour plus de renseignements sur la maison. Maisons France Confort Bayeux vous accompagne à toutes les étapes de l'achat et dans tous vos projets immobiliers.
Annonce proposée par un Agent Commercial Partenaire.
Mentions légales
Terrain proposé par un partenaire foncier selon disponibilités et autorisation de publicité au prix de 34 844 €. Hors droit d'enregistrement et frais de notaire. Terrain + Maison proposés au prix de 189 844 € (Hors branchements et raccordements, papiers peints, peintures, revêtement de sol dans les chambres. Tarif modifiable sans préavis). Etiquette énergie : A. Différents modèles disponibles pour ce terrain. Assurances et garanties du constructeur (RC professionnelle, décennale, dommage ouvrage, garantie de remboursement de l'acompte, livraison à prix et délai convenu) : https://www.maisons-france-confort.fr/mentions-legales/. HEXAOM Services est enregistré auprès de l'ORIAS en tant que Courtier en financement, Niveau 1, sous le numéro 14001345.Agence Maisons France Confort de Bayeux (14400)
- Téléphone :
- 02 31 51 20 91
- Adressse :
- 2, rue Saint Loup
14400 Bayeux, France
