Maison neuve à
Gravigny (27930) Référence : MD2495796_2

Prix du projet : Maison avec Terrain

prix 242 676 €

  • 6 pièces
  • 4 chambres
  • Surface maison 91 m2

MAISON NEUVE AVEC 6 PIÈCES DANS UN QUARTIER RECHERCHÉ À GRAVIGNY

PRÉSENTATION DU BIEN

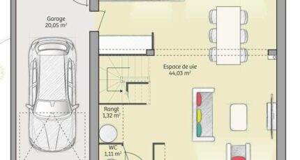
Située à Gravigny, dans un quartier recherché, cette maison à construire offre une surface habitable de 91 m² sur un terrain de 543 m².

Cette maison comprend quatre chambres, une cuisine et une salle de bains avec baignoire. Vous pourrez vous projeter dans ce logement neuf adapté à vos projets de construction.

Cette maison à vendre s'étend sur deux niveaux, offrant un agencement adapté à un cadre de vie confortable.

Le terrain de 543 m² permet de réaliser un jardin et de profiter pleinement de l'extérieur.

ENVIRONNEMENT

Gravigny est une commune avec un cadre résidentiel recherché. La ville d'Évreux se trouve à 4 km.

La gare d'Évreux Normandie est accessible pour vos déplacements. Vous êtes proche des nationales N154 et N13 qui desservent la région.

Pour l'éducation, l'école primaire Paul Langevin - Henri Wallon est à 5 minutes à pied et le collège Marcel Pagnol à moins de 15 minutes à pied.

Vous trouverez également des commerces, des boucheries-charcuteries et des restaurants à proximité immédiate.

NOUS CONTACTER

Cette maison est proposée à la vente au prix de 244 676 euros. Le bien est situé en zone PTZ B2.

Pour plus de renseignements et pour réaliser votre projet de construction, contactez Murielle DEBART de l'agence Maisons France Confort Vernon au 06-29-34-36-28. Notre équipe vous accompagnera dans toutes les étapes de votre achat.

Mentions légales

Terrain proposé par un partenaire foncier selon disponibilités et autorisation de publicité au prix de 80 500 €. Hors droit d'enregistrement et frais de notaire. Terrain + Maison proposés au prix de 242 676 € (Hors branchements et raccordements, papiers peints, peintures, revêtement de sol dans les chambres. Tarif modifiable sans préavis). Etiquette énergie : A. Différents modèles disponibles pour ce terrain. Assurances et garanties du constructeur (RC professionnelle, décennale, dommage ouvrage, garantie de remboursement de l'acompte, livraison à prix et délai convenu) : https://www.maisons-france-confort.fr/mentions-legales/. HEXAOM Services est enregistré auprès de l'ORIAS en tant que Courtier en financement, Niveau 1, sous le numéro 14001345.

Contactez l'agence de Vernon

02 32 51 45 05

    * Champs obligatoires

    Vos informations sont traitées par HEXAOM et transmises à un conseiller commercial qui vous contactera afin de répondre à votre demande. Les plans et images présentés sur notre site sont la propriété d’HEXAOM et ne peuvent pas être reproduits sans son accord. Pour retrouver notre politique de protection des données personnelles et exercer vos droits conformément à la « loi informatique et liberté » cliquez-ici.