Maison neuve à
Reuilly (27930) Référence : MB2495882_3

Prix du projet : Maison avec Terrain

prix 219 890 €

  • 6 pièces
  • 4 chambres
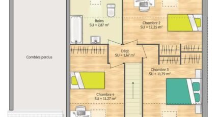
  • Surface maison 89 m2

MAISON NEUVE DE 89 M² À REUILLY, 6 PIÈCES, EMPLACEMENT PRIVILÉGIÉ

PRÉSENTATION DU BIEN

Située à Reuilly, dans un emplacement privilégié, cette maison neuve à construire dispose d'une surface habitable de 89 m² sur un terrain de 669 m².

Cette maison offre quatre chambres, une cuisine et une salle de bains avec baignoire. Vous pourrez réaliser votre maison directement sur ce terrain.

La maison s'étend sur deux niveaux, offrant ainsi un aménagement réparti sur ces deux étages.

Le terrain de 669 m² vous ouvre de nombreuses possibilités pour aménager votre espace extérieur selon vos envies.

ENVIRONNEMENT

Reuilly est une commune dotée d'un cadre calme. La ville d'Évreux est située à 9 km. Un équipement de tennis se trouve à moins de 10 minutes à pied. Le bien bénéficie également d'une bonne desserte routière avec la proximité des nationales N154 et N13 ainsi que de l'autoroute A13, située à environ 9 km. La gare d'Évreux Normandie est accessible à environ 9 km. Une école élémentaire est implantée à proximité. Des commerces se trouvent autour du bien.

NOUS CONTACTER

Cette maison neuve à Reuilly est proposée à la vente pour un montant de 219 890 euros.

Contactez l'agence Maisons France Confort Vernon pour en savoir plus. Mickael BESNARD est à votre disposition au 06-15-50-56-87.

N'hésitez pas à prendre contact afin de concrétiser votre projet et construire votre maison dans ce secteur recherché.

Annonce proposée par un Agent Commercial Partenaire.

Mentions légales

Terrain proposé par un partenaire foncier selon disponibilités et autorisation de publicité au prix de 50 000 €. Hors droit d'enregistrement et frais de notaire. Terrain + Maison proposés au prix de 219 890 € (Hors branchements et raccordements, papiers peints, peintures, revêtement de sol dans les chambres. Tarif modifiable sans préavis). Etiquette énergie : A. Différents modèles disponibles pour ce terrain. Assurances et garanties du constructeur (RC professionnelle, décennale, dommage ouvrage, garantie de remboursement de l'acompte, livraison à prix et délai convenu) : https://www.maisons-france-confort.fr/mentions-legales/. HEXAOM Services est enregistré auprès de l'ORIAS en tant que Courtier en financement, Niveau 1, sous le numéro 14001345.

Contactez l'agence de Vernon

02 32 51 45 05

    * Champs obligatoires

    Vos informations sont traitées par HEXAOM et transmises à un conseiller commercial qui vous contactera afin de répondre à votre demande. Les plans et images présentés sur notre site sont la propriété d’HEXAOM et ne peuvent pas être reproduits sans son accord. Pour retrouver notre politique de protection des données personnelles et exercer vos droits conformément à la « loi informatique et liberté » cliquez-ici.