Maison neuve à
Injoux-Génissiat (01200) Référence : SG2627_1

Prix du projet : Maison avec Terrain

prix 392 500 €

  • 5 pièces
  • 4 chambres
  • Surface maison 100 m2

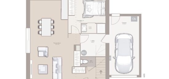
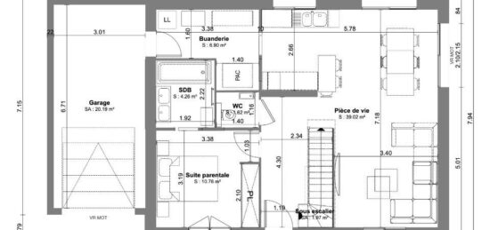
Maison de 5 pièces (100 m²) en vente à Injoux-Génissiat
MAISON 5 PIÈCES NEUVE
À vendre proche du Suisse, venez découvrir cette maison de 5 pièces de 100 m² à Injoux-Génissiat (01200). Elle comporte quatre chambres, une cuisine et deux salles de bains.
Le terrain du bien s'étend sur 927 m².
Il s'agit d'une maison de 2 niveaux. Elle est neuve.
L'École Primaire des Balmettes est implantée dans la commune. Côté transports en commun, on trouve la gare Bellegarde-sur-Valserine à moins de 10 minutes en voiture. L'autoroute A40 est accessible à 8 km. Il y a une bibliothèque à quelques minutes du logement.
Elle est proposée à l'achat pour 392 500 €.
Prenez contact avec notre agence (Sébastien GABRILLARGUES : 06-81-77-73-67) pour tout renseignement sur la maison ou sur les modalités de vente. Donnez vie à vos projets immobiliers avec Maisons France Confort Bourg-en-Bresse.

Annonce proposée par un Agent Commercial Partenaire.

Mentions légales

Terrain proposé par un partenaire foncier selon disponibilités et autorisation de publicité au prix de 139 000 €. Hors droit d'enregistrement et frais de notaire. Terrain + Maison proposés au prix de 392 500 € (Hors branchements et raccordements, papiers peints, peintures, revêtement de sol dans les chambres. Tarif modifiable sans préavis). Etiquette énergie : A. Différents modèles disponibles pour ce terrain. Assurances et garanties du constructeur (RC professionnelle, décennale, dommage ouvrage, garantie de remboursement de l'acompte, livraison à prix et délai convenu) : https://www.maisons-france-confort.fr/mentions-legales/. HEXAOM Services est enregistré auprès de l'ORIAS en tant que Courtier en financement, Niveau 1, sous le numéro 14001345.

Contactez l'agence de Bourg-en-Bresse

04 74 14 04 47

    * Champs obligatoires

    Vos informations sont traitées par HEXAOM et transmises à un conseiller commercial qui vous contactera afin de répondre à votre demande. Les plans et images présentés sur notre site sont la propriété d’HEXAOM et ne peuvent pas être reproduits sans son accord. Pour retrouver notre politique de protection des données personnelles et exercer vos droits conformément à la « loi informatique et liberté » cliquez-ici.