Maison neuve à
La Chapelle-du-Bois-des-Faulx
(27930) Référence :
MB2382364_4
Prix du projet : Maison avec Terrain
prix 218 500 €
- 6 pièces
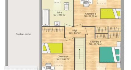
- 4 chambres
- Surface maison 89 m2
Maison F6 (89 m²) en vente à La Chapelle-du-Bois-des-Faulx
IDÉALEMENT SITUÉE - MAISON 6 PIÈCES NEUVE
En vente : située à quelques kilomètres d'Évreux, idéalement située dans La Chapelle-du-Bois-des-Faulx (27930), laissez vous charmer par cette maison de 6 pièces de 89 m² et de 383 m² de terrain. Son intérieur est composé de quatre chambres, d'une cuisine et d'une salle de bains.
C'est une maison de 2 niveaux. Elle est neuve.
Cette maison est située dans un secteur attractif. On trouve l'École Élémentaire Jules Ferry à moins de 10 minutes à pied. Les autoroutes A154 et A13 et les nationales N154 et N13 sont accessibles à moins de 10 km.
Son prix de vente est de 218 500 €.
Prenez contact avec Mickael BESNARD (tél : 06-15-50-56-87) pour toute question sur la maison ou sur les démarches à suivre.
Annonce proposée par un Agent Commercial Partenaire.
Mentions légales
Terrain proposé par un partenaire foncier selon disponibilités et autorisation de publicité au prix de 40 000 €. Hors droit d'enregistrement et frais de notaire. Terrain + Maison proposés au prix de 218 500 € (Hors branchements et raccordements, papiers peints, peintures, revêtement de sol dans les chambres. Tarif modifiable sans préavis). Etiquette énergie : A. Différents modèles disponibles pour ce terrain. Assurances et garanties du constructeur (RC professionnelle, décennale, dommage ouvrage, garantie de remboursement de l'acompte, livraison à prix et délai convenu) : https://www.maisons-france-confort.fr/mentions-legales/. HEXAOM Services est enregistré auprès de l'ORIAS en tant que Courtier en financement, Niveau 1, sous le numéro 14001345.Agence Maisons France Confort de Vernon (27200)
- Téléphone :
- 02 32 51 45 05
- Adressse :
- 38 rue Carnot
27200 Vernon, France
