Maison neuve à
Le Plessis-aux-Bois
(77165) Référence :
CY2469333_2
Prix du projet : Maison avec Terrain
prix 362 897 €
- 5 pièces
- 4 chambres
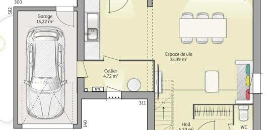
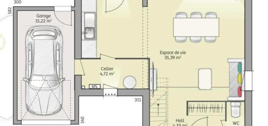
- Surface maison 120 m2
VENTE : maison de 5 pièces (120 m²) au Plessis-aux-Bois
IDÉALEMENT SITUÉE - MAISON 5 PIÈCES NEUVE
En vente : au pied de la gare de Dammartin-Juilly-Saint-Mard (Paris à 30 min avec le Transilien K), ayez le coup de coeur pour cette maison de 5 pièces de plain-pied de 120 m² idéalement située dans Le Plessis-aux-Bois (77165).
Son intérieur offre quatre chambres, une cuisine et deux salles de bains. La maison est neuve.
Le terrain de la propriété est de 376 m².
Cette maison se situe dans un secteur convoité. Une école élémentaire y est implantée. Niveau transports, il y a la station de RER Mitry-Claye (ligne B) ainsi que cinq gares à moins de 10 minutes en voiture.
Elle est à vendre pour la somme de 362 897 €.
Contactez notre agence (Cedric YAHIAOUI : 06-66-57-00-63) pour toute information sur la maison, sur les modalités de vente ou sur les démarches à suivre. Faites de vos projets immobiliers une réalité avec Maisons France Confort Mareuil-lès-Meaux.
Annonce proposée par un Agent Commercial Partenaire.
Mentions légales
Terrain proposé par un partenaire foncier selon disponibilités et autorisation de publicité au prix de 134 000 €. Hors droit d'enregistrement et frais de notaire. Terrain + Maison proposés au prix de 362 897 € (Hors branchements et raccordements, papiers peints, peintures, revêtement de sol dans les chambres. Tarif modifiable sans préavis). Etiquette énergie : A. Différents modèles disponibles pour ce terrain. Assurances et garanties du constructeur (RC professionnelle, décennale, dommage ouvrage, garantie de remboursement de l'acompte, livraison à prix et délai convenu) : https://www.maisons-france-confort.fr/mentions-legales/. HEXAOM Services est enregistré auprès de l'ORIAS en tant que Courtier en financement, Niveau 1, sous le numéro 14001345.Agence Maisons France Confort de Mareuil-lès-Meaux (77100)
- Téléphone :
- 01 60 09 28 30
- Adressse :
- Domexpo Est Village La Hayette
77100 Mareuil-lès-Meaux, France