Maison neuve à
Le Plessis-aux-Bois
(77165) Référence :
CY2469333_1
Prix du projet : Maison avec Terrain
prix 324 000 €
- 5 pièces
- 3 chambres
- Surface maison 80 m2
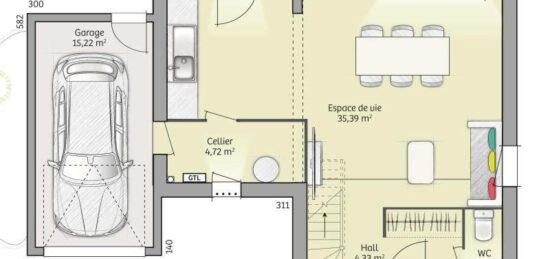
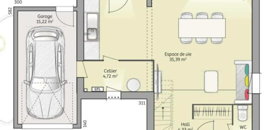
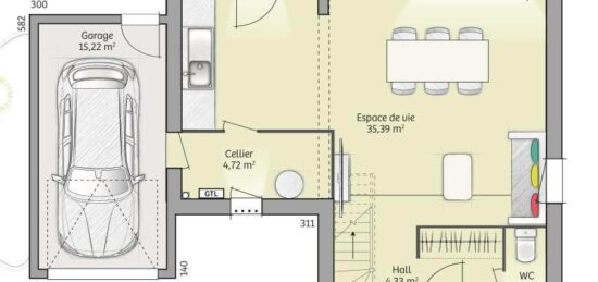
VENTE : maison de 5 pièces (80 m²) au Plessis-aux-Bois
IDÉALEMENT SITUÉE - MAISON 5 PIÈCES NEUVE
À proximité de la gare de Dammartin-Juilly-Saint-Mard (Paris à 30 min par le Transilien K), à vendre idéalement située dans Le Plessis-aux-Bois (77165), nous vous présentons cette maison de 5 pièces de 80 m² et de 376 m² de terrain.
Cette maison compte 2 niveaux. Elle inclut trois chambres, une cuisine et une salle de bains. La maison est neuve.
Cette maison se situe dans un secteur attractif. Une école élémentaire y est implantée. Niveau transports en commun, on trouve la station de RER Mitry-Claye (ligne B) ainsi que cinq gares à moins de 10 minutes en voiture.
Elle est proposée à l'achat pour 324 000 €.
Prenez contact avec notre agence (YAHIAOUI Cedric : 06-66-57-00-63) pour tout renseignement sur la maison, sur les modalités de vente ou sur les démarches à suivre. Maisons France Confort Mareuil-lès-Meaux vous accompagne à toutes les étapes de votre projet et dans tous vos projets immobiliers.
Annonce proposée par un Agent Commercial Partenaire.
Mentions légales
Terrain proposé par un partenaire foncier selon disponibilités et autorisation de publicité au prix de 134 000 €. Hors droit d'enregistrement et frais de notaire. Terrain + Maison proposés au prix de 324 000 € (Hors branchements et raccordements, papiers peints, peintures, revêtement de sol dans les chambres. Tarif modifiable sans préavis). Etiquette énergie : A. Différents modèles disponibles pour ce terrain. Assurances et garanties du constructeur (RC professionnelle, décennale, dommage ouvrage, garantie de remboursement de l'acompte, livraison à prix et délai convenu) : https://www.maisons-france-confort.fr/mentions-legales/. HEXAOM Services est enregistré auprès de l'ORIAS en tant que Courtier en financement, Niveau 1, sous le numéro 14001345.Agence Maisons France Confort de Mareuil-lès-Meaux (77100)
- Téléphone :
- 01 60 09 28 30
- Adressse :
- Domexpo Est Village La Hayette
77100 Mareuil-lès-Meaux, France