Maison neuve à
Les Écrennes (77820) Référence : DC2496378_2

Prix du projet : Maison avec Terrain

prix 313 505 €

  • 5 pièces
  • 3 chambres
  • Surface maison 90 m2

MAISON NEUVE À CONSTRUIRE DE 90 M² À LES ÉCRENNES, SECTEUR RÉSIDENTIEL CALME

PRÉSENTATION DU BIEN

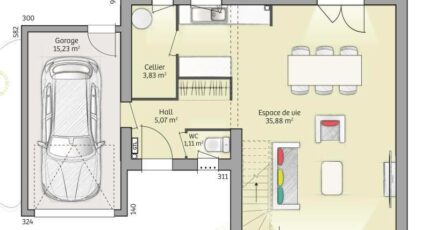
Située à Les Écrennes, cette maison à construire offre une surface habitable de 90 m² sur un terrain de 324 m², dans un environnement résidentiel paisible.

La maison propose trois chambres, une cuisine et une salle de bain équipée d'une baignoire. Vous pourrez réaliser votre projet de construction en bénéficiant de toutes ces options pour concevoir votre future habitation.

Cette maison est répartie sur deux niveaux, permettant une organisation agréable des espaces.

Le terrain de 324 m² représente un espace extérieur appréciable pour vos aménagements futurs.

ENVIRONNEMENT

Les Écrennes est une commune calme proche de Melun, accessible à 17 km. Plusieurs lignes de bus desservent le secteur, notamment les lignes 3441 et 3442 avec des arrêts à environ 80 mètres. L'autoroute A5 est à 6 km, facilitant vos déplacements. Vous trouverez à proximité des courts de tennis et un restaurant situés à quelques minutes à pied. Une école primaire est également présente dans la commune.

NOUS CONTACTER

Cette maison à construire est proposée à la vente au prix de 313 505 euros, honoraires compris.

Pour plus d'informations, n'hésitez pas à contacter David Cordier chez Maisons France Confort Melun, membre du réseau Maisons France Confort, au 06-10-79-38-15. Il se tient à votre disposition pour étudier votre projet et répondre à vos questions.

Annonce proposée par un Agent Commercial Partenaire.

Mentions légales

Terrain proposé par un partenaire foncier selon disponibilités et autorisation de publicité au prix de 100 900 €. Hors droit d'enregistrement et frais de notaire. Terrain + Maison proposés au prix de 313 505 € (Hors branchements et raccordements, papiers peints, peintures, revêtement de sol dans les chambres. Tarif modifiable sans préavis). Etiquette énergie : A. Différents modèles disponibles pour ce terrain. Assurances et garanties du constructeur (RC professionnelle, décennale, dommage ouvrage, garantie de remboursement de l'acompte, livraison à prix et délai convenu) : https://www.maisons-france-confort.fr/mentions-legales/. HEXAOM Services est enregistré auprès de l'ORIAS en tant que Courtier en financement, Niveau 1, sous le numéro 14001345.

Contactez l'agence de Melun

01 64 14 43 20

    * Champs obligatoires

    Vos informations sont traitées par HEXAOM et transmises à un conseiller commercial qui vous contactera afin de répondre à votre demande. Les plans et images présentés sur notre site sont la propriété d’HEXAOM et ne peuvent pas être reproduits sans son accord. Pour retrouver notre politique de protection des données personnelles et exercer vos droits conformément à la « loi informatique et liberté » cliquez-ici.