Maison neuve à
Limetz-Villez (78270) Référence : MD2389373_1

Prix du projet : Maison avec Terrain

prix 274 177 €

  • 6 pièces
  • 4 chambres
  • Surface maison 91 m2

Maison F6 (91 m²) à vendre à Bréval
QUARTIER RECHERCHÉ - MAISON 6 PIÈCES NEUVE
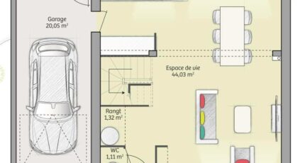
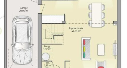
À 30 km d'Évreux, Maisons France Confort Vernon vous présente à vendre, située dans un secteur convoité de Bréval (78980), cette maison de 6 pièces de 91 m². Elle se divise en quatre chambres, une cuisine et une salle de bains.
Le terrain du bien s'étend sur 433 m².
C'est une maison de 2 niveaux. Elle est neuve.
Cette maison se trouve dans un quartier recherché. Il y a le Collège les Nénuphars, l'École Élémentaire les Mille Couleurs et l'École Maternelle la Ribambelle à moins de 10 minutes à pied. Niveau transports, on trouve la gare Bréval à proximité. Il y a un tennis, des commerces, une boulangerie, un supermarché, deux boucheries-charcuteries et un bureau de poste dans les environs.
Elle est proposée à l'achat pour 274 177 €.
Contactez Murielle DEBART (tél : 06-29-34-36-28) pour toute question sur la maison ou sur les modalités de vente. Maisons France Confort Vernon est là pour vous accompagner à toutes les étapes de l'achat.

Mentions légales

Terrain proposé par un partenaire foncier selon disponibilités et autorisation de publicité au prix de 95 000 €. Hors droit d'enregistrement et frais de notaire. Terrain + Maison proposés au prix de 274 177 € (Hors branchements et raccordements, papiers peints, peintures, revêtement de sol dans les chambres. Tarif modifiable sans préavis). Etiquette énergie : A. Différents modèles disponibles pour ce terrain. Assurances et garanties du constructeur (RC professionnelle, décennale, dommage ouvrage, garantie de remboursement de l'acompte, livraison à prix et délai convenu) : https://www.maisons-france-confort.fr/mentions-legales/. HEXAOM Services est enregistré auprès de l'ORIAS en tant que Courtier en financement, Niveau 1, sous le numéro 14001345.

Contactez l'agence de Vernon

02 32 51 45 05

    * Champs obligatoires

    Vos informations sont traitées par HEXAOM et transmises à un conseiller commercial qui vous contactera afin de répondre à votre demande. Les plans et images présentés sur notre site sont la propriété d’HEXAOM et ne peuvent pas être reproduits sans son accord. Pour retrouver notre politique de protection des données personnelles et exercer vos droits conformément à la « loi informatique et liberté » cliquez-ici.