Maison neuve à
Limetz-Villez
(78270) Référence :
MB2403656_3
Prix du projet : Maison avec Terrain
prix 268 389 €
- 6 pièces
- 4 chambres
- Surface maison 89 m2
Maison F6 (89 m²) en vente à Limetz-Villez
EMPLACEMENT PRIVILÉGIÉ - MAISON 6 PIÈCES NEUVE
En vente : à côté de la gare de Vernon-Giverny (Paris à 1 h par le Transilien J), nous vous présentons cette maison de 6 pièces de 89 m² bénéficiant d'un emplacement privilégié dans Limetz-Villez (78270).
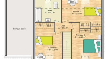
Cette maison compte 2 niveaux. Son intérieur comporte quatre chambres, une cuisine et une salle de bains. Cette maison est neuve.
Le terrain de la propriété s'étend sur 752 m².
La maison se situe dans un secteur prisé. On y trouve des établissements scolaires maternelles et élémentaires. Niveau transports en commun, il y a trois gares (Bonnières-sur-Seine, Vernon-Giverny et Rosny-sur-Seine) à moins de 10 minutes en voiture. Il y a une bibliothèque, un tennis, un commerce et deux épiceries à proximité du bien.
Son prix de vente est de 268 389 €.
Prenez contact avec Mickael BESNARD (06-15-50-56-87) pour toute question sur la maison ou sur les modalités de vente. Maisons France Confort Vernon vous accompagne dans toutes vos démarches et dans tous vos projets immobiliers.
Annonce proposée par un Agent Commercial Partenaire.
Mentions légales
Terrain proposé par un partenaire foncier selon disponibilités et autorisation de publicité au prix de 95 000 €. Hors droit d'enregistrement et frais de notaire. Terrain + Maison proposés au prix de 268 389 € (Hors branchements et raccordements, papiers peints, peintures, revêtement de sol dans les chambres. Tarif modifiable sans préavis). Etiquette énergie : A. Différents modèles disponibles pour ce terrain. Assurances et garanties du constructeur (RC professionnelle, décennale, dommage ouvrage, garantie de remboursement de l'acompte, livraison à prix et délai convenu) : https://www.maisons-france-confort.fr/mentions-legales/. HEXAOM Services est enregistré auprès de l'ORIAS en tant que Courtier en financement, Niveau 1, sous le numéro 14001345.Agence Maisons France Confort de Vernon (27200)
- Téléphone :
- 02 32 51 45 05
- Adressse :
- 38 rue Carnot
27200 Vernon, France
