Maison neuve à
Luzarches (95270) Référence : TR2418341_1

Prix du projet : Maison avec Terrain

prix 306 000 €

  • 5 pièces
  • 3 chambres
  • Surface maison 80 m2

VENTE d'une maison de 5 pièces (80 m²) à Luzarches
PROCHE DE PARIS - MAISON 5 PIÈCES NEUVE
Au pied de la gare de Viarmes, à vendre à Luzarches (95270), notre agence Maisons France Confort Mareuil-lès-Meaux est ravie de vous présenter cette maison de 5 pièces de 80 m².
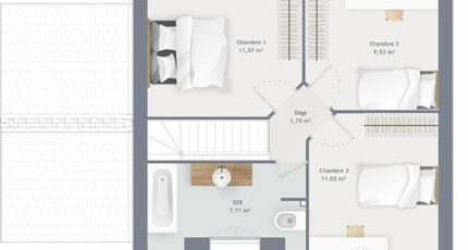
Il s'agit d'une maison de 2 niveaux. Son intérieur dispose de trois chambres, d'une cuisine et d'une salle de bains. Cette maison est neuve.
Le terrain de la propriété est de 358 m².
L'École Élémentaire Privée les Petites Souris de Montessori et le Collège Blaise Pascal sont implantés à moins de 10 minutes à pied. Côté transports en commun, il y a la gare Viarmes à quelques pas de la maison, positionnant Paris à 40 min de la maison en transilien. On trouve trois commerces et une boulangerie à proximité du logement.
Elle est à vendre pour la somme de 306 000 €.
Contactez notre constructeur (ROUSSEL Thomas : 06-67-03-68-69) pour toute question sur la maison. Maisons France Confort Mareuil-lès-Meaux est là pour vous accompagner dans tous vos projets immobiliers.

Annonce proposée par un Agent Commercial Partenaire.

Mentions légales

Terrain proposé par un partenaire foncier selon disponibilités et autorisation de publicité au prix de 162 000 €. Hors droit d'enregistrement et frais de notaire. Terrain + Maison proposés au prix de 306 000 € (Hors branchements et raccordements, papiers peints, peintures, revêtement de sol dans les chambres. Tarif modifiable sans préavis). Etiquette énergie : A. Différents modèles disponibles pour ce terrain. Assurances et garanties du constructeur (RC professionnelle, décennale, dommage ouvrage, garantie de remboursement de l'acompte, livraison à prix et délai convenu) : https://www.maisons-france-confort.fr/mentions-legales/. HEXAOM Services est enregistré auprès de l'ORIAS en tant que Courtier en financement, Niveau 1, sous le numéro 14001345.

Contactez l'agence de Mareuil-lès-Meaux

01 60 09 28 30

    * Champs obligatoires

    Vos informations sont traitées par HEXAOM et transmises à un conseiller commercial qui vous contactera afin de répondre à votre demande. Les plans et images présentés sur notre site sont la propriété d’HEXAOM et ne peuvent pas être reproduits sans son accord. Pour retrouver notre politique de protection des données personnelles et exercer vos droits conformément à la « loi informatique et liberté » cliquez-ici.