Maison neuve à
Machault
(77133) Référence :
CY2430216_1
Prix du projet : Maison avec Terrain
prix 259 000 €
- 5 pièces
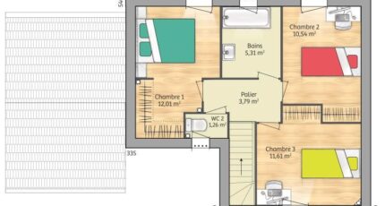
- 3 chambres
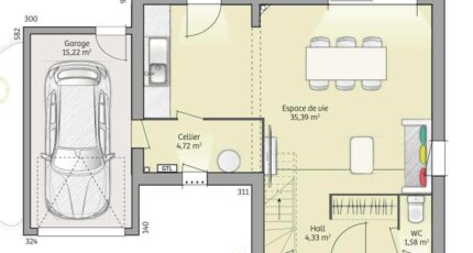
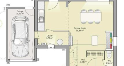
- Surface maison 90 m2
Machault : maison T5 (90 m²) en vente
PROCHE DE MELUN - MAISON 5 PIÈCES NEUVE
À deux pas du Transilien R (gare de Saint-Mammès, 50 min de Paris), nous vous proposons cette maison de 5 pièces de 90 m² et de 356 m² de terrain en vente à Machault (77133).
Cette maison possède 2 niveaux. Elle compte trois chambres, une cuisine et une salle de bains. Cette maison est neuve.
On trouve tous les types d'établissements scolaires à moins de 10 minutes en voiture, tout comme sept crèches à moins de 10 minutes à pied. Niveau transports en commun, il y a 10 gares à moins de 10 minutes en voiture. On trouve des tennis, des bibliothèques, trois bassins de natation, des boulangeries, des commerces, des supermarchés, des boucheries-charcuteries et des bureaux de poste à proximité de la maison. 3 marchés animent le quartier.
Son prix de vente est de 259 000 €.
Contactez notre agence (YAHIAOUI Cedric : 06-66-57-00-63) pour plus de renseignements sur la maison ou sur les modalités de vente. Maisons France Confort Magny-le-Hongre est là pour vous accompagner dans tous vos projets immobiliers.
Annonce proposée par un Agent Commercial Partenaire.
Mentions légales
Terrain proposé par un partenaire foncier selon disponibilités et autorisation de publicité au prix de 99 000 €. Hors droit d'enregistrement et frais de notaire. Terrain + Maison proposés au prix de 259 000 € (Hors branchements et raccordements, papiers peints, peintures, revêtement de sol dans les chambres. Tarif modifiable sans préavis). Etiquette énergie : A. Différents modèles disponibles pour ce terrain. Assurances et garanties du constructeur (RC professionnelle, décennale, dommage ouvrage, garantie de remboursement de l'acompte, livraison à prix et délai convenu) : https://www.maisons-france-confort.fr/mentions-legales/. HEXAOM Services est enregistré auprès de l'ORIAS en tant que Courtier en financement, Niveau 1, sous le numéro 14001345.Agence Maisons France Confort de Magny-le-Hongre (77700)
- Téléphone :
- 01 84 80 92 96
- Adressse :
- 11 rue de Courtalin
77700 Magny-le-Hongre, France
