Maison neuve à
Marcilly (77139) Référence : CY2434986_1

Prix du projet : Maison avec Terrain

prix 255 000 €

  • 5 pièces
  • 3 chambres
  • Surface maison 90 m2

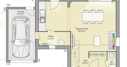
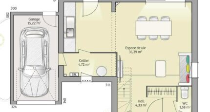
VENTE : maison de 5 pièces (90 m²) à Marcilly
MAISON 5 PIÈCES NEUVE - PROCHE D'AULNAY-SOUS-BOIS
Au pied de la gare de Meaux (Paris à 25 min par le Transilien P), notre agence Maisons France Confort Magny-le-Hongre est heureuse de vous présenter cette maison de 5 pièces de 90 m² et de 402 m² de terrain en vente à Marcilly (77139).
Il s'agit d'une maison de 2 niveaux. Elle offre trois chambres, une cuisine et une salle de bains. La maison est neuve.
Il y a une école élémentaire dans le quartier. Côté transports en commun, on trouve la gare Meaux à moins de 10 minutes en voiture.
Son prix de vente est de 255 000 €.
N'hésitez pas à prendre contact avec notre constructeur (Cedric YAHIAOUI : 06-66-57-00-63) pour toute information sur cette maison.

Annonce proposée par un Agent Commercial Partenaire.

Mentions légales

Terrain proposé par un partenaire foncier selon disponibilités et autorisation de publicité au prix de 95 000 €. Hors droit d'enregistrement et frais de notaire. Terrain + Maison proposés au prix de 255 000 € (Hors branchements et raccordements, papiers peints, peintures, revêtement de sol dans les chambres. Tarif modifiable sans préavis). Etiquette énergie : A. Différents modèles disponibles pour ce terrain. Assurances et garanties du constructeur (RC professionnelle, décennale, dommage ouvrage, garantie de remboursement de l'acompte, livraison à prix et délai convenu) : https://www.maisons-france-confort.fr/mentions-legales/. HEXAOM Services est enregistré auprès de l'ORIAS en tant que Courtier en financement, Niveau 1, sous le numéro 14001345.

Contactez l'agence de Magny-le-Hongre

01 84 80 92 96

    * Champs obligatoires

    Vos informations sont traitées par HEXAOM et transmises à un conseiller commercial qui vous contactera afin de répondre à votre demande. Les plans et images présentés sur notre site sont la propriété d’HEXAOM et ne peuvent pas être reproduits sans son accord. Pour retrouver notre politique de protection des données personnelles et exercer vos droits conformément à la « loi informatique et liberté » cliquez-ici.