Maison neuve à
Marcilly
(77139) Référence :
DC2444120_2
Prix du projet : Maison avec Terrain
prix 385 000 €
- 5 pièces
- 4 chambres
- Surface maison 90 m2
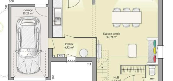
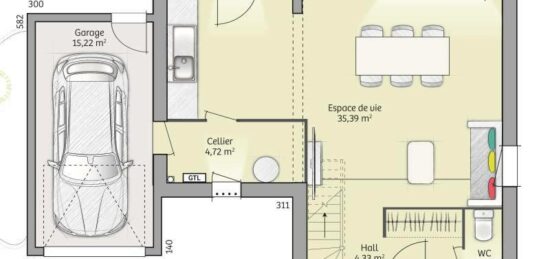
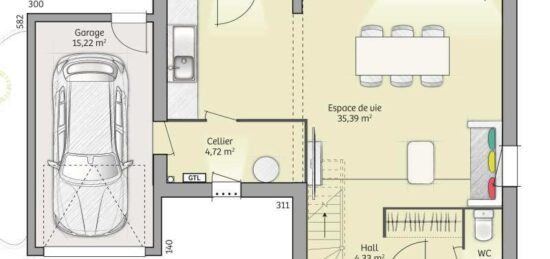
VENTE d'une maison de 5 pièces (90 m²) à Marcilly
MAISON 5 PIÈCES NEUVE - PROCHE D'AULNAY-SOUS-BOIS
À vendre : à proximité du Transilien P (gare de Meaux, 25 min de Paris), nous vous proposons à Marcilly (77139), cette maison de 5 pièces de 90 m². Son intérieur compte quatre chambres, une cuisine et deux salles de bains.
Le terrain de la propriété s'étend sur 978 m².
C'est une maison de 2 niveaux. Elle est neuve.
Une école élémentaire est implantée dans le quartier. Niveau transports en commun, il y a la gare Meaux à moins de 10 minutes en voiture.
Son prix de vente est de 385 000 €.
N'hésitez pas à prendre contact avec notre agence (réf F.J : 01-64-14-43-30) pour toute question sur cette maison ou sur les démarches à suivre. Maisons France Confort Melun est là pour vous accompagner dans tous vos projets immobiliers.
Annonce proposée par un Agent Commercial Partenaire.
Mentions légales
Terrain proposé par un partenaire foncier selon disponibilités et autorisation de publicité au prix de 145 000 €. Hors droit d'enregistrement et frais de notaire. Terrain + Maison proposés au prix de 385 000 € (Hors branchements et raccordements, papiers peints, peintures, revêtement de sol dans les chambres. Tarif modifiable sans préavis). Etiquette énergie : A. Différents modèles disponibles pour ce terrain. Assurances et garanties du constructeur (RC professionnelle, décennale, dommage ouvrage, garantie de remboursement de l'acompte, livraison à prix et délai convenu) : https://www.maisons-france-confort.fr/mentions-legales/. HEXAOM Services est enregistré auprès de l'ORIAS en tant que Courtier en financement, Niveau 1, sous le numéro 14001345.Agence Maisons France Confort de Melun (77000)
- Téléphone :
- 01 64 14 43 20
- Adressse :
- 3 route de Nangis
77000 Melun, France