Maison neuve à
Marcilly
(77139) Référence :
CY2435455_1
Prix du projet : Maison avec Terrain
prix 305 000 €
- 5 pièces
- 3 chambres
- Surface maison 90 m2
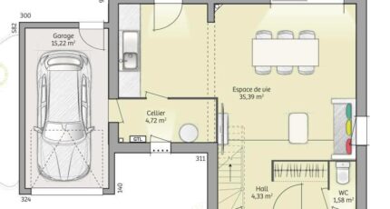
VENTE : maison de 5 pièces (90 m²) à Marcilly
PROCHE D'AULNAY-SOUS-BOIS - MAISON 5 PIÈCES NEUVE
À proximité de la gare de Meaux (Paris à 25 min par le Transilien P), découvrez cette maison de 5 pièces de 90 m² à vendre à Marcilly (77139).
C'est une maison de 2 niveaux. Son intérieur se divise en trois chambres, une cuisine et une salle de bains. Cette maison est neuve.
Le terrain de la propriété est de 978 m².
Il y a une école élémentaire dans le quartier. Niveau transports en commun, on trouve la gare Meaux à moins de 10 minutes en voiture.
Elle est à vendre pour la somme de 305 000 €.
Prenez contact avec notre agence (YAHIAOUI Cedric : 06-66-57-00-63) pour obtenir de plus amples informations sur la maison ou sur les démarches à suivre.
Annonce proposée par un Agent Commercial Partenaire.
Mentions légales
Terrain proposé par un partenaire foncier selon disponibilités et autorisation de publicité au prix de 145 000 €. Hors droit d'enregistrement et frais de notaire. Terrain + Maison proposés au prix de 305 000 € (Hors branchements et raccordements, papiers peints, peintures, revêtement de sol dans les chambres. Tarif modifiable sans préavis). Etiquette énergie : A. Différents modèles disponibles pour ce terrain. Assurances et garanties du constructeur (RC professionnelle, décennale, dommage ouvrage, garantie de remboursement de l'acompte, livraison à prix et délai convenu) : https://www.maisons-france-confort.fr/mentions-legales/. HEXAOM Services est enregistré auprès de l'ORIAS en tant que Courtier en financement, Niveau 1, sous le numéro 14001345.Agence Maisons France Confort de Magny-le-Hongre (77700)
- Téléphone :
- 01 84 80 92 96
- Adressse :
- 11 rue de Courtalin
77700 Magny-le-Hongre, France
