Maison neuve à
Mareuil-lès-Meaux (77100) Référence : IL2446517_1

Prix du projet : Maison avec Terrain

prix 325 000 €

  • 5 pièces
  • 3 chambres
  • Surface maison 80 m2

Maison T5 (80 m²) en vente à Mareuil-lès-Meaux
PROCHE D'AULNAY-SOUS-BOIS - MAISON 5 PIÈCES NEUVE
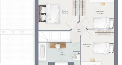
En vente : à quelques minutes de la gare de Meaux (Paris à 25 min par le Transilien P), nous sommes ravis de vous présenter à Mareuil-lès-Meaux (77100), cette maison de 5 pièces de 80 m² et de 342 m² de terrain.
C'est une maison de 2 niveaux. Elle est composée de trois chambres, d'une cuisine et d'une salle de bains. La maison est neuve.
L'École Élémentaire les Hirondelles et l'École Maternelle la Marelle se trouvent à moins de 10 minutes à pied. Niveau transports en commun, il y a la station de RER Chessy-Marne-La-Vallée (ligne A) ainsi que huit gares à moins de 10 minutes en voiture. On trouve un tennis et deux commerces dans les environs.
Elle est à vendre pour la somme de 335 000 €.
N'hésitez pas à prendre contact avec notre agence (LASLEDJ Ishane : 06-68-91-18-74) pour toute question sur cette maison.

Annonce proposée par un Agent Commercial Partenaire.

Mentions légales

Terrain proposé par un partenaire foncier selon disponibilités et autorisation de publicité au prix de 136 000 €. Hors droit d'enregistrement et frais de notaire. Terrain + Maison proposés au prix de 325 000 € (Hors branchements et raccordements, papiers peints, peintures, revêtement de sol dans les chambres. Tarif modifiable sans préavis). Etiquette énergie : A. Différents modèles disponibles pour ce terrain. Assurances et garanties du constructeur (RC professionnelle, décennale, dommage ouvrage, garantie de remboursement de l'acompte, livraison à prix et délai convenu) : https://www.maisons-france-confort.fr/mentions-legales/. HEXAOM Services est enregistré auprès de l'ORIAS en tant que Courtier en financement, Niveau 1, sous le numéro 14001345.

Contactez l'agence de Mareuil-lès-Meaux

01 60 09 28 30

    * Champs obligatoires

    Vos informations sont traitées par HEXAOM et transmises à un conseiller commercial qui vous contactera afin de répondre à votre demande. Les plans et images présentés sur notre site sont la propriété d’HEXAOM et ne peuvent pas être reproduits sans son accord. Pour retrouver notre politique de protection des données personnelles et exercer vos droits conformément à la « loi informatique et liberté » cliquez-ici.