Maison neuve à
Meaux
(77100) Référence :
CY2425355_15
Prix du projet : Maison avec Terrain
prix 240 000 €
- 5 pièces
- 3 chambres
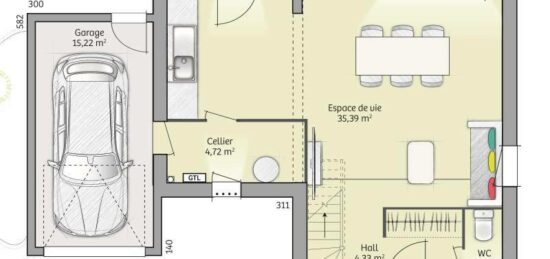
- Surface maison 75 m2
VENTE d'une maison T5 (75 m²) à Meaux
MAISON 5 PIÈCES NEUVE
À deux pas du Transilien P (25 min de Paris), laissez vous charmer par cette maison de 5 pièces de plain-pied de 75 m² et de 346 m² de terrain en vente à Meaux (77100).
Conçue de plain-pied, elle compte trois chambres, une cuisine et une salle de bains. La maison est neuve.
Des écoles de tous types sont implantées à moins de 10 minutes à pied, tout comme une crèche. Niveau transports, on trouve sept gares à moins de 10 minutes en voiture. Il y a un bassin de natation, un tennis, une bibliothèque, des commerces, trois supermarchés, des boulangeries, des boucheries-charcuteries et un bureau de poste à proximité du logement. Enfin, 2 marchés animent le quartier.
Elle est à vendre pour la somme de 240 000 €.
Prenez contact avec Cedric YAHIAOUI (06-66-57-00-63) pour obtenir de plus amples renseignements sur la maison. Maisons France Confort Magny-le-Hongre vous accompagne dans tous vos projets immobiliers et dans toutes vos démarches.
Annonce proposée par un Agent Commercial Partenaire.
Mentions légales
Terrain proposé par un partenaire foncier selon disponibilités et autorisation de publicité au prix de 98 000 €. Hors droit d'enregistrement et frais de notaire. Terrain + Maison proposés au prix de 240 000 € (Hors branchements et raccordements, papiers peints, peintures, revêtement de sol dans les chambres. Tarif modifiable sans préavis). Etiquette énergie : A. Différents modèles disponibles pour ce terrain. Assurances et garanties du constructeur (RC professionnelle, décennale, dommage ouvrage, garantie de remboursement de l'acompte, livraison à prix et délai convenu) : https://www.maisons-france-confort.fr/mentions-legales/. HEXAOM Services est enregistré auprès de l'ORIAS en tant que Courtier en financement, Niveau 1, sous le numéro 14001345.Agence Maisons France Confort de Mareuil-lès-Meaux (77100)
- Téléphone :
- 01 60 09 28 30
- Adressse :
- Domexpo Est Village La Hayette
77100 Mareuil-lès-Meaux, France
