Maison neuve à
Meaux
(77100) Référence :
CY2425355_20
Prix du projet : Maison avec Terrain
prix 275 000 €
- 5 pièces
- 3 chambres
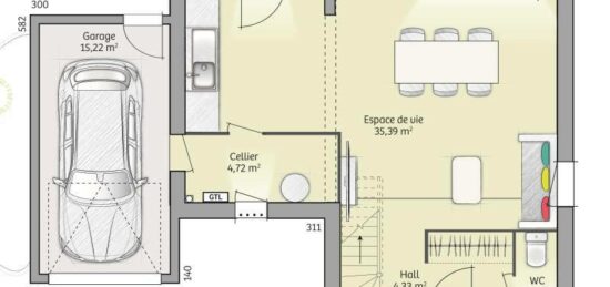
- Surface maison 95 m2
Maison de 5 pièces (95 m²) en vente à Meaux
MAISON 5 PIÈCES NEUVE
À proximité de la gare (Paris à 25 min avec le Transilien P), en vente à Meaux (77100), nous sommes ravis de vous présenter cette maison de 5 pièces de plain-pied de 95 m². Son intérieur propose trois chambres, une cuisine et deux salles de bains.
Le terrain de la propriété s'étend sur 346 m².
La maison est neuve.
Des établissements scolaires de tous types sont implantés à moins de 10 minutes à pied, tout comme une structure d'accueil pour les enfants en bas âge. Niveau transports, on trouve sept gares à moins de 10 minutes en voiture. Il y a un bassin de natation, un tennis, une bibliothèque, des commerces, trois supermarchés, des boulangeries, quatre épiceries et des boucheries-charcuteries dans les environs. Enfin, 2 marchés animent le quartier.
Elle est proposée à l'achat pour 275 000 €.
Prenez contact avec Cedric YAHIAOUI (06-66-57-00-63) pour obtenir de plus amples renseignements sur ce bien. Maisons France Confort Magny-le-Hongre vous accompagne à toutes les étapes de votre projet et dans tous vos projets immobiliers.
Annonce proposée par un Agent Commercial Partenaire.
Mentions légales
Terrain proposé par un partenaire foncier selon disponibilités et autorisation de publicité au prix de 98 000 €. Hors droit d'enregistrement et frais de notaire. Terrain + Maison proposés au prix de 275 000 € (Hors branchements et raccordements, papiers peints, peintures, revêtement de sol dans les chambres. Tarif modifiable sans préavis). Etiquette énergie : A. Différents modèles disponibles pour ce terrain. Assurances et garanties du constructeur (RC professionnelle, décennale, dommage ouvrage, garantie de remboursement de l'acompte, livraison à prix et délai convenu) : https://www.maisons-france-confort.fr/mentions-legales/. HEXAOM Services est enregistré auprès de l'ORIAS en tant que Courtier en financement, Niveau 1, sous le numéro 14001345.Agence Maisons France Confort de Mareuil-lès-Meaux (77100)
- Téléphone :
- 01 60 09 28 30
- Adressse :
- Domexpo Est Village La Hayette
77100 Mareuil-lès-Meaux, France
