Maison neuve à
Meaux
(77100) Référence :
CY2468506_1
Prix du projet : Maison avec Terrain
prix 310 500 €
- 5 pièces
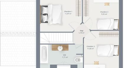
- 3 chambres
- Surface maison 80 m2
Maison de 5 pièces (80 m²) en vente à Meaux
IDÉALEMENT SITUÉE - MAISON 5 PIÈCES NEUVE
À vendre : à deux pas du Transilien P (25 min de Paris), nous sommes ravis de vous présenter cette maison de 5 pièces de 80 m² et de 502 m² de terrain idéalement située dans Meaux (77100). Son intérieur compte trois chambres, une cuisine et une salle de bains.
C'est une maison de 2 niveaux. Elle est neuve.
Cette maison est située dans un secteur convoité. Des établissements scolaires (de la maternelle au lycée) sont implantés à moins de 10 minutes à pied, tout comme une structure d'accueil pour les enfants en bas âge. Côté transports en commun, on trouve sept gares à moins de 10 minutes en voiture. Il y a un bassin de natation, un tennis, une bibliothèque, des commerces, des épiceries et des boucheries-charcuteries à quelques minutes. 2 marchés animent les environs.
Elle est proposée à l'achat pour 310 500 €.
Contactez notre agence (YAHIAOUI Cedric : 06-66-57-00-63) pour toute question sur la maison, sur les démarches à suivre ou sur les modalités de vente. Maisons France Confort Mareuil-lès-Meaux est là pour vous accompagner à toutes les étapes de l'achat.
Annonce proposée par un Agent Commercial Partenaire.
Mentions légales
Terrain proposé par un partenaire foncier selon disponibilités et autorisation de publicité au prix de 120 500 €. Hors droit d'enregistrement et frais de notaire. Terrain + Maison proposés au prix de 310 500 € (Hors branchements et raccordements, papiers peints, peintures, revêtement de sol dans les chambres. Tarif modifiable sans préavis). Etiquette énergie : A. Différents modèles disponibles pour ce terrain. Assurances et garanties du constructeur (RC professionnelle, décennale, dommage ouvrage, garantie de remboursement de l'acompte, livraison à prix et délai convenu) : https://www.maisons-france-confort.fr/mentions-legales/. HEXAOM Services est enregistré auprès de l'ORIAS en tant que Courtier en financement, Niveau 1, sous le numéro 14001345.Agence Maisons France Confort de Mareuil-lès-Meaux (77100)
- Téléphone :
- 01 60 09 28 30
- Adressse :
- Domexpo Est Village La Hayette
77100 Mareuil-lès-Meaux, France
