Maison neuve à
Meaux (77100) Référence : CY2468576_1

Prix du projet : Maison avec Terrain

prix 315 000 €

  • 5 pièces
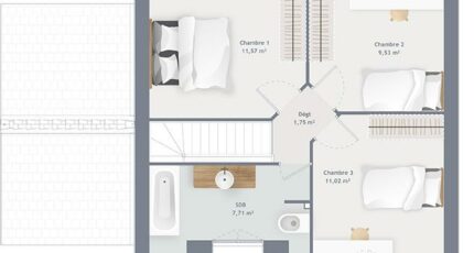
  • 3 chambres
  • Surface maison 80 m2

Maison de 5 pièces (80 m²) en vente à Meaux
IDÉALEMENT SITUÉE - MAISON 5 PIÈCES NEUVE
À vendre : à quelques minutes de la gare (Paris à 25 min par le Transilien P), Maisons France Confort Mareuil-lès-Meaux vous présente, idéalement située dans Meaux (77100), cette maison de 5 pièces de 80 m².
Il s'agit d'une maison de 2 niveaux. Elle est composée de trois chambres, d'une cuisine et d'une salle de bains. La maison est neuve.
Le terrain du bien s'étend sur 330 m².
Cette maison est située dans un secteur convoité. On trouve des écoles de tous types à moins de 10 minutes à pied, tout comme une crèche. Niveau transports, il y a sept gares à moins de 10 minutes en voiture. On trouve un bassin de natation, un tennis, une bibliothèque, des commerces, des épiceries et des boucheries-charcuteries à quelques minutes du logement. 2 marchés animent le quartier.
Son prix de vente est de 315 000 €.
N'hésitez pas à prendre contact avec Cedric YAHIAOUI (tél : 06-66-57-00-63) pour toute information sur le bien.

Annonce proposée par un Agent Commercial Partenaire.

Mentions légales

Terrain proposé par un partenaire foncier selon disponibilités et autorisation de publicité au prix de 125 000 €. Hors droit d'enregistrement et frais de notaire. Terrain + Maison proposés au prix de 315 000 € (Hors branchements et raccordements, papiers peints, peintures, revêtement de sol dans les chambres. Tarif modifiable sans préavis). Etiquette énergie : A. Différents modèles disponibles pour ce terrain. Assurances et garanties du constructeur (RC professionnelle, décennale, dommage ouvrage, garantie de remboursement de l'acompte, livraison à prix et délai convenu) : https://www.maisons-france-confort.fr/mentions-legales/. HEXAOM Services est enregistré auprès de l'ORIAS en tant que Courtier en financement, Niveau 1, sous le numéro 14001345.

Contactez l'agence de Mareuil-lès-Meaux

01 60 09 28 30

    * Champs obligatoires

    Vos informations sont traitées par HEXAOM et transmises à un conseiller commercial qui vous contactera afin de répondre à votre demande. Les plans et images présentés sur notre site sont la propriété d’HEXAOM et ne peuvent pas être reproduits sans son accord. Pour retrouver notre politique de protection des données personnelles et exercer vos droits conformément à la « loi informatique et liberté » cliquez-ici.