Maison neuve à
Mousseaux-lès-Bray
(77480) Référence :
CY2436120_1
Prix du projet : Maison avec Terrain
prix 206 000 €
- 5 pièces
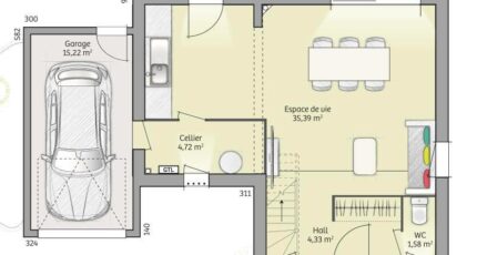
- 3 chambres
- Surface maison 90 m2
Maison de 5 pièces (90 m²) en vente à Mousseaux-lès-Bray
MAISON 5 PIÈCES NEUVE - PROCHE DE SENS
En vente : localisée à quelques kilomètres de Sens, venez découvrir cette maison de 5 pièces de 90 m² à Mousseaux-lès-Bray (77480). Son intérieur comporte trois chambres, une cuisine et une salle de bains.
Le terrain du bien est de 554 m².
Cette maison compte 2 niveaux. Elle est neuve.
Deux établissements scolaires sont implantés à moins de 10 minutes à pied, tout comme dont le Collège Jean Rostand. Il y a un supermarché, des commerces, trois boulangeries, un bureau de poste et une épicerie à quelques minutes. Le marché Place de la Halle a lieu tous les vendredis matin.
Elle est à vendre pour la somme de 206 000 €.
N'hésitez pas à prendre contact avec notre agence (YAHIAOUI Cedric : 06-66-57-00-63) pour obtenir de plus amples renseignements sur cette maison. Donnez vie à vos projets immobiliers avec Maisons France Confort Magny-le-Hongre.
Annonce proposée par un Agent Commercial Partenaire.
Mentions légales
Terrain proposé par un partenaire foncier selon disponibilités et autorisation de publicité au prix de 46 000 €. Hors droit d'enregistrement et frais de notaire. Terrain + Maison proposés au prix de 206 000 € (Hors branchements et raccordements, papiers peints, peintures, revêtement de sol dans les chambres. Tarif modifiable sans préavis). Etiquette énergie : A. Différents modèles disponibles pour ce terrain. Assurances et garanties du constructeur (RC professionnelle, décennale, dommage ouvrage, garantie de remboursement de l'acompte, livraison à prix et délai convenu) : https://www.maisons-france-confort.fr/mentions-legales/. HEXAOM Services est enregistré auprès de l'ORIAS en tant que Courtier en financement, Niveau 1, sous le numéro 14001345.Agence Maisons France Confort de Magny-le-Hongre (77700)
- Téléphone :
- 01 84 80 92 96
- Adressse :
- 11 rue de Courtalin
77700 Magny-le-Hongre, France
