Maison neuve à
Nanteuil-lès-Meaux
(77100) Référence :
CY2406567_1
Prix du projet : Maison avec Terrain
prix 354 000 €
- 5 pièces
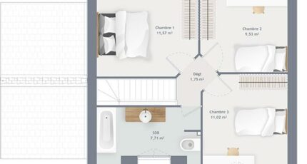
- 3 chambres
- Surface maison 80 m2
Maison T5 (80 m²) à vendre à Nanteuil-lès-Meaux
IDÉALEMENT SITUÉE - MAISON 5 PIÈCES NEUVE
À vendre : à quelques minutes de la gare de Meaux (Paris à 25 min par le Transilien P), nous vous proposons cette maison de 5 pièces de 80 m² et de 899 m² de terrain idéalement située dans Nanteuil-lès-Meaux (77100).
Cette maison possède 2 niveaux. Elle inclut trois chambres, une cuisine et une salle de bains. Cette maison est neuve.
La maison se trouve dans un quartier recherché. Il y a des établissements scolaires primaires à moins de 10 minutes à pied. Niveau transports, on trouve huit gares à moins de 10 minutes en voiture. On trouve une bibliothèque, trois commerces, deux boulangeries, un bureau de poste et une épicerie à proximité du bien.
Elle est proposée à l'achat pour 354 000 €.
Contactez notre agence (Cedric YAHIAOUI : 06-66-57-00-63) pour obtenir de plus amples renseignements sur le bien ou sur les démarches à suivre. Donnez vie à vos projets immobiliers avec Maisons France Confort Mareuil-lès-Meaux.
Annonce proposée par un Agent Commercial Partenaire.
Mentions légales
Terrain proposé par un partenaire foncier selon disponibilités et autorisation de publicité au prix de 210 000 €. Hors droit d'enregistrement et frais de notaire. Terrain + Maison proposés au prix de 354 000 € (Hors branchements et raccordements, papiers peints, peintures, revêtement de sol dans les chambres. Tarif modifiable sans préavis). Etiquette énergie : A. Différents modèles disponibles pour ce terrain. Assurances et garanties du constructeur (RC professionnelle, décennale, dommage ouvrage, garantie de remboursement de l'acompte, livraison à prix et délai convenu) : https://www.maisons-france-confort.fr/mentions-legales/. HEXAOM Services est enregistré auprès de l'ORIAS en tant que Courtier en financement, Niveau 1, sous le numéro 14001345.Agence Maisons France Confort de Mareuil-lès-Meaux (77100)
- Téléphone :
- 01 60 09 28 30
- Adressse :
- Domexpo Est Village La Hayette
77100 Mareuil-lès-Meaux, France
