Maison neuve à
Nanteuil-lès-Meaux
(77100) Référence :
CY2406567_2
Prix du projet : Maison avec Terrain
prix 372 000 €
- 5 pièces
- 3 chambres
- Surface maison 90 m2
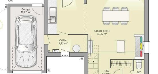
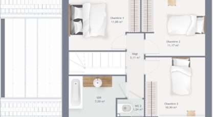
VENTE d'une maison F5 (90 m²) à Nanteuil-lès-Meaux
IDÉALEMENT SITUÉE - MAISON 5 PIÈCES NEUVE
À vendre : proche du Transilien P (gare de Meaux, 25 min de Paris), nous vous proposons cette maison de 5 pièces de 90 m² idéalement située dans Nanteuil-lès-Meaux (77100).
Cette maison comporte 2 niveaux. Elle est composée de trois chambres, d'une cuisine et d'une salle de bains. Cette maison est neuve.
Le terrain du bien est de 899 m².
Cette maison est située dans un quartier convoité. On trouve des établissements scolaires primaires à moins de 10 minutes à pied. Côté transports, il y a huit gares à moins de 10 minutes en voiture. Il y a une bibliothèque, trois commerces, deux boulangeries, un bureau de poste et une épicerie à quelques minutes du logement.
Elle est à vendre pour la somme de 372 000 €.
N'hésitez pas à prendre contact avec Cedric YAHIAOUI (tél : 06-66-57-00-63) pour toute question sur la maison, sur les démarches à suivre ou sur les modalités de vente. Maisons France Confort Mareuil-lès-Meaux est là pour vous accompagner à toutes les étapes de votre projet.
Annonce proposée par un Agent Commercial Partenaire.
Mentions légales
Terrain proposé par un partenaire foncier selon disponibilités et autorisation de publicité au prix de 210 000 €. Hors droit d'enregistrement et frais de notaire. Terrain + Maison proposés au prix de 372 000 € (Hors branchements et raccordements, papiers peints, peintures, revêtement de sol dans les chambres. Tarif modifiable sans préavis). Etiquette énergie : A. Différents modèles disponibles pour ce terrain. Assurances et garanties du constructeur (RC professionnelle, décennale, dommage ouvrage, garantie de remboursement de l'acompte, livraison à prix et délai convenu) : https://www.maisons-france-confort.fr/mentions-legales/. HEXAOM Services est enregistré auprès de l'ORIAS en tant que Courtier en financement, Niveau 1, sous le numéro 14001345.Agence Maisons France Confort de Mareuil-lès-Meaux (77100)
- Téléphone :
- 01 60 09 28 30
- Adressse :
- Domexpo Est Village La Hayette
77100 Mareuil-lès-Meaux, France
