Maison neuve à
Nanteuil-lès-Meaux
(77100) Référence :
CY2406827_2
Prix du projet : Maison avec Terrain
prix 291 000 €
- 5 pièces
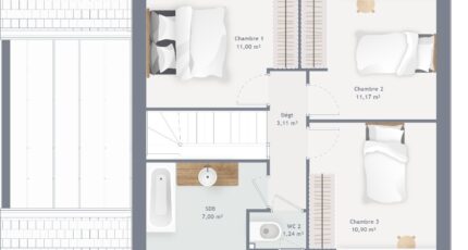
- 3 chambres
- Surface maison 90 m2
VENTE : maison T5 (90 m²) à Nanteuil-lès-Meaux
IDÉALEMENT SITUÉE - MAISON 5 PIÈCES NEUVE
À vendre : proche de la gare de Meaux (Paris à 25 min avec le Transilien P), votre agence Maisons France Confort Mareuil-lès-Meaux est ravie de vous présenter, idéalement située dans Nanteuil-lès-Meaux (77100), cette maison de 5 pièces de 90 m².
Il s'agit d'une maison de 2 niveaux. Son intérieur offre trois chambres, une cuisine et une salle de bains. La maison est neuve.
Le terrain du bien s'étend sur 450 m².
Cette maison se trouve dans un quartier recherché. Il y a des écoles maternelles et élémentaires à moins de 10 minutes à pied. Côté transports, on trouve huit gares à moins de 10 minutes en voiture. On trouve une bibliothèque, trois commerces, deux boulangeries, un bureau de poste et une épicerie à quelques minutes de la maison.
Son prix de vente est de 291 000 €.
Contactez Cedric YAHIAOUI (tél : 06-66-57-00-63) pour toute question sur la maison ou sur les démarches à suivre.
Annonce proposée par un Agent Commercial Partenaire.
Mentions légales
Terrain proposé par un partenaire foncier selon disponibilités et autorisation de publicité au prix de 129 000 €. Hors droit d'enregistrement et frais de notaire. Terrain + Maison proposés au prix de 291 000 € (Hors branchements et raccordements, papiers peints, peintures, revêtement de sol dans les chambres. Tarif modifiable sans préavis). Etiquette énergie : A. Différents modèles disponibles pour ce terrain. Assurances et garanties du constructeur (RC professionnelle, décennale, dommage ouvrage, garantie de remboursement de l'acompte, livraison à prix et délai convenu) : https://www.maisons-france-confort.fr/mentions-legales/. HEXAOM Services est enregistré auprès de l'ORIAS en tant que Courtier en financement, Niveau 1, sous le numéro 14001345.Agence Maisons France Confort de Mareuil-lès-Meaux (77100)
- Téléphone :
- 01 60 09 28 30
- Adressse :
- Domexpo Est Village La Hayette
77100 Mareuil-lès-Meaux, France
