Maison neuve à
Nanteuil-lès-Meaux (77100) Référence : TR2409063_6

Prix du projet : Maison avec Terrain

prix 282 000 €

  • 5 pièces
  • 3 chambres
  • Surface maison 75 m2

Nanteuil-lès-Meaux : maison T5 (75 m²) en vente
PROCHE D'AULNAY-SOUS-BOIS - MAISON 5 PIÈCES NEUVE
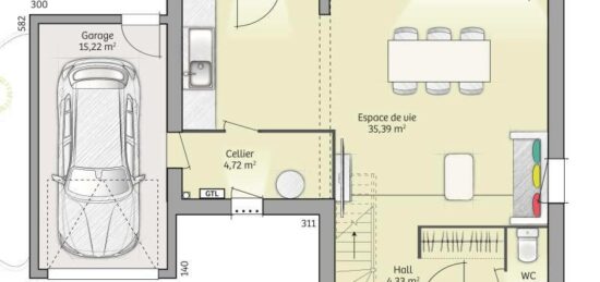
En vente : à deux pas du Transilien P (gare de Meaux, 25 min de Paris), à Nanteuil-lès-Meaux (77100), découvrez cette maison de 5 pièces de plain-pied de 75 m² et de 667 m² de terrain.
Conçue de plain-pied, elle se divise en trois chambres, une cuisine et une salle de bains. Cette maison est neuve.
Des établissements scolaires maternelles et élémentaires sont implantés à moins de 10 minutes à pied. Niveau transports, on trouve huit gares à moins de 10 minutes en voiture. Il y a une bibliothèque, trois commerces, deux boulangeries, une épicerie et un bureau de poste à proximité.
Elle est à vendre pour la somme de 282 000 €.
Prenez contact avec Thomas ROUSSEL (06-67-03-68-69) pour toute question sur la maison. Maisons France Confort Mareuil-lès-Meaux vous accompagne à toutes les étapes de votre projet et dans tous vos projets immobiliers.

Annonce proposée par un Agent Commercial Partenaire.

Mentions légales

Terrain proposé par un partenaire foncier selon disponibilités et autorisation de publicité au prix de 147 000 €. Hors droit d'enregistrement et frais de notaire. Terrain + Maison proposés au prix de 282 000 € (Hors branchements et raccordements, papiers peints, peintures, revêtement de sol dans les chambres. Tarif modifiable sans préavis). Etiquette énergie : A. Différents modèles disponibles pour ce terrain. Assurances et garanties du constructeur (RC professionnelle, décennale, dommage ouvrage, garantie de remboursement de l'acompte, livraison à prix et délai convenu) : https://www.maisons-france-confort.fr/mentions-legales/. HEXAOM Services est enregistré auprès de l'ORIAS en tant que Courtier en financement, Niveau 1, sous le numéro 14001345.

Contactez l'agence de Mareuil-lès-Meaux

01 60 09 28 30

    * Champs obligatoires

    Vos informations sont traitées par HEXAOM et transmises à un conseiller commercial qui vous contactera afin de répondre à votre demande. Les plans et images présentés sur notre site sont la propriété d’HEXAOM et ne peuvent pas être reproduits sans son accord. Pour retrouver notre politique de protection des données personnelles et exercer vos droits conformément à la « loi informatique et liberté » cliquez-ici.