Maison neuve à
Nanteuil-lès-Meaux
(77100) Référence :
CY2431485_1
Prix du projet : Maison avec Terrain
prix 319 000 €
- 5 pièces
- 3 chambres
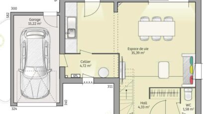
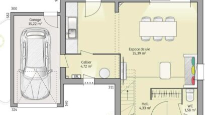
- Surface maison 90 m2
Nanteuil-lès-Meaux : maison T5 (90 m²) en vente
PROCHE D'AULNAY-SOUS-BOIS - MAISON 5 PIÈCES NEUVE
À côté de la gare de Meaux (Paris à 25 min par le Transilien P), notre agence Maisons France Confort Magny-le-Hongre est heureuse de vous présenter cette maison de 5 pièces de 90 m² en vente à Nanteuil-lès-Meaux (77100).
Cette maison compte 2 niveaux. Elle compte trois chambres, une cuisine et une salle de bains. Cette maison est neuve.
Le terrain du bien s'étend sur 798 m².
Des écoles maternelles et élémentaires se trouvent à moins de 10 minutes à pied. Niveau transports en commun, il y a huit gares à moins de 10 minutes en voiture. On trouve une bibliothèque, trois commerces, deux boulangeries, une épicerie et un bureau de poste à proximité du logement.
Il est proposé à l'achat pour 319 000 €.
N'hésitez pas à prendre contact avec notre constructeur (Cedric YAHIAOUI : 06-66-57-00-63) pour tout renseignement sur cette maison. Maisons France Confort Magny-le-Hongre vous accompagne dans toutes vos démarches et à toutes les étapes de votre projet.
Annonce proposée par un Agent Commercial Partenaire.
Mentions légales
Terrain proposé par un partenaire foncier selon disponibilités et autorisation de publicité au prix de 159 000 €. Hors droit d'enregistrement et frais de notaire. Terrain + Maison proposés au prix de 319 000 € (Hors branchements et raccordements, papiers peints, peintures, revêtement de sol dans les chambres. Tarif modifiable sans préavis). Etiquette énergie : A. Différents modèles disponibles pour ce terrain. Assurances et garanties du constructeur (RC professionnelle, décennale, dommage ouvrage, garantie de remboursement de l'acompte, livraison à prix et délai convenu) : https://www.maisons-france-confort.fr/mentions-legales/. HEXAOM Services est enregistré auprès de l'ORIAS en tant que Courtier en financement, Niveau 1, sous le numéro 14001345.Agence Maisons France Confort de Magny-le-Hongre (77700)
- Téléphone :
- 01 84 80 92 96
- Adressse :
- 11 rue de Courtalin
77700 Magny-le-Hongre, France
