Maison neuve à
Nanteuil-lès-Meaux (77100) Référence : CY2430964_1

Prix du projet : Maison avec Terrain

prix 282 000 €

  • 5 pièces
  • 3 chambres
  • Surface maison 90 m2

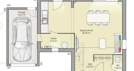
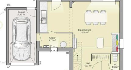
Maison de 5 pièces (90 m²) à vendre à Nanteuil-lès-Meaux
PROCHE D'AULNAY-SOUS-BOIS - MAISON 5 PIÈCES NEUVE
Au pied de la gare de Meaux (Paris à 25 min avec le Transilien P), en vente à Nanteuil-lès-Meaux (77100), votre agence Maisons France Confort Magny-le-Hongre est heureuse de vous présenter cette maison de 5 pièces de 90 m². Elle compte trois chambres, une cuisine et une salle de bains.
Le terrain de la maison s'étend sur 544 m².
Il s'agit d'une maison de 2 niveaux. Elle est neuve.
Il y a des écoles maternelles et élémentaires à moins de 10 minutes à pied. Côté transports en commun, on trouve huit gares à moins de 10 minutes en voiture. On trouve une bibliothèque, trois commerces, deux boulangeries, une épicerie et un bureau de poste à proximité.
Son prix de vente est de 282 000 €.
Contactez notre agence (YAHIAOUI Cedric : 06-66-57-00-63) pour toute question sur cette maison, sur les modalités de vente ou sur les démarches à suivre. Donnez vie à vos projets immobiliers avec Maisons France Confort Magny-le-Hongre.

Annonce proposée par un Agent Commercial Partenaire.

Mentions légales

Terrain proposé par un partenaire foncier selon disponibilités et autorisation de publicité au prix de 122 000 €. Hors droit d'enregistrement et frais de notaire. Terrain + Maison proposés au prix de 282 000 € (Hors branchements et raccordements, papiers peints, peintures, revêtement de sol dans les chambres. Tarif modifiable sans préavis). Etiquette énergie : A. Différents modèles disponibles pour ce terrain. Assurances et garanties du constructeur (RC professionnelle, décennale, dommage ouvrage, garantie de remboursement de l'acompte, livraison à prix et délai convenu) : https://www.maisons-france-confort.fr/mentions-legales/. HEXAOM Services est enregistré auprès de l'ORIAS en tant que Courtier en financement, Niveau 1, sous le numéro 14001345.

Contactez l'agence de Magny-le-Hongre

01 84 80 92 96

    * Champs obligatoires

    Vos informations sont traitées par HEXAOM et transmises à un conseiller commercial qui vous contactera afin de répondre à votre demande. Les plans et images présentés sur notre site sont la propriété d’HEXAOM et ne peuvent pas être reproduits sans son accord. Pour retrouver notre politique de protection des données personnelles et exercer vos droits conformément à la « loi informatique et liberté » cliquez-ici.