Maison neuve à
Nanteuil-lès-Meaux (77100) Référence : TR2413368_2

Prix du projet : Maison avec Terrain

prix 266 000 €

  • 5 pièces
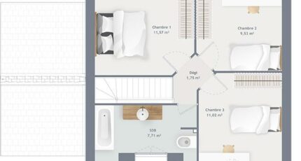
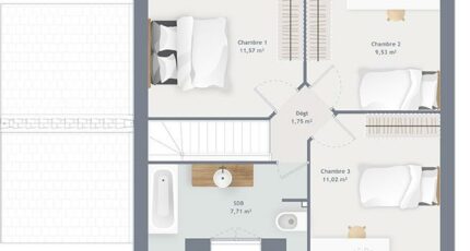
  • 3 chambres
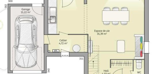
  • Surface maison 80 m2

Maison de 5 pièces (80 m²) à vendre à Nanteuil-lès-Meaux
MAISON 5 PIÈCES NEUVE - PROCHE D'AULNAY-SOUS-BOIS
Proche du Transilien P (gare de Meaux, 25 min de Paris), nous vous présentons en vente à Nanteuil-lès-Meaux (77100), cette maison de 5 pièces de 80 m² et de 544 m² de terrain.
Cette maison comporte 2 niveaux. Elle inclut trois chambres, une cuisine et une salle de bains. Cette maison est neuve.
Des écoles primaires sont implantées à moins de 10 minutes à pied. Côté transports en commun, on trouve huit gares à moins de 10 minutes en voiture. Il y a une bibliothèque, trois commerces, deux boulangeries, une épicerie et un bureau de poste à proximité.
Elle est à vendre pour la somme de 266 000 €.
N'hésitez pas à prendre contact avec notre agence (ROUSSEL Thomas : 06-67-03-68-69) pour toute question sur la maison ou sur les démarches à suivre.

Annonce proposée par un Agent Commercial Partenaire.

Mentions légales

Terrain proposé par un partenaire foncier selon disponibilités et autorisation de publicité au prix de 122 000 €. Hors droit d'enregistrement et frais de notaire. Terrain + Maison proposés au prix de 266 000 € (Hors branchements et raccordements, papiers peints, peintures, revêtement de sol dans les chambres. Tarif modifiable sans préavis). Etiquette énergie : A. Différents modèles disponibles pour ce terrain. Assurances et garanties du constructeur (RC professionnelle, décennale, dommage ouvrage, garantie de remboursement de l'acompte, livraison à prix et délai convenu) : https://www.maisons-france-confort.fr/mentions-legales/. HEXAOM Services est enregistré auprès de l'ORIAS en tant que Courtier en financement, Niveau 1, sous le numéro 14001345.

Contactez l'agence de Mareuil-lès-Meaux

01 60 09 28 30

    * Champs obligatoires

    Vos informations sont traitées par HEXAOM et transmises à un conseiller commercial qui vous contactera afin de répondre à votre demande. Les plans et images présentés sur notre site sont la propriété d’HEXAOM et ne peuvent pas être reproduits sans son accord. Pour retrouver notre politique de protection des données personnelles et exercer vos droits conformément à la « loi informatique et liberté » cliquez-ici.