Maison neuve à 
  Noisy-le-Grand
 (93160)  Référence :
 FS2261019-0_1 
Prix du projet : Maison avec Terrain
prix 525 000 €
- 5 pièces
- 3 chambres
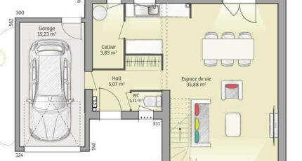
- Surface maison 90 m2
VENTE : maison F5 (90 m²) à Noisy-le-Grand
CENTRE-VILLE - MAISON 5 PIÈCES NEUVE
En vente : à côté du RER A (station Noisy-le-Grand-Mont d'Est, 15 min de Paris), nous vous présentons, dans le centre de Noisy-le-Grand (93160), cette maison de 5 pièces de 90 m².
C'est une maison de 2 niveaux. Son intérieur inclut trois chambres, une cuisine et une salle de bains. La maison est neuve.
Le terrain de la propriété s'étend sur 457 m².
Des établissements scolaires de tous types (de la maternelle au lycée) sont implantés à moins de 10 minutes à pied, tout comme deux structures d'accueil pour les tout-petits. Niveau transports en commun, il y a trois lignes de RER (A, E et B) ainsi que 26 gares à moins de 10 minutes en voiture. On trouve un bassin de natation, un tennis, des commerces, des boulangeries, trois supermarchés, des épiceries et un bureau de poste à quelques minutes du bien.
Son prix de vente est de 525 000 €.
N'hésitez pas à prendre contact avec Félix SOUMARMON (tél : 06-10-24-97-84) pour toute information sur la propriété ou sur les démarches à suivre. Maisons France Confort Magny-le-Hongre est là pour vous accompagner à toutes les étapes de l'achat.
Annonce proposée par un Agent Commercial Partenaire.
Mentions légales
Terrain proposé par un partenaire foncier selon disponibilités et autorisation de publicité au prix de 350 000 €. Hors droit d'enregistrement et frais de notaire. Maison proposée, avec un contrat de construction de maison individuelle, dans le cadre de la loi du 19/12/1990, au prix de 175 000 € (Hors branchements et raccordements, papiers peints, peintures, revêtement de sol dans les chambres, qui sont chiffrés dans les travaux qui restent à charge du client. Tarif modifiable sans préavis). Étiquette énergie : A. Différents modèles disponibles pour ce terrain. Assurances et garanties du constructeur comprises (RC professionnelle, décennale, dommage ouvrage).Agence Maisons France Confort de Magny-le-Hongre (77700)
- Téléphone :
- 01 84 80 92 96
- Adressse :
-  11 rue de Courtalin
 77700 Magny-le-Hongre, France
 
  
  
  
  
 