Maison neuve à
Noisy-le-Grand
(93160) Référence :
TM2263998_1
Prix du projet : Maison avec Terrain
prix 310 000 €
- 5 pièces
- 3 chambres
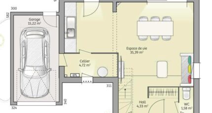
- Surface maison 90 m2
Noisy-le-Grand : maison de 5 pièces (90 m²) en vente
EMPLACEMENT PRIVILÉGIÉ - MAISON 5 PIÈCES NEUVE
Au pied de la station Noisy-le-Grand-Mont d'Est (Paris à 15 min avec le RER A), à vendre bénéficiant d'un emplacement d'exception dans Noisy-le-Grand (93160), Maisons France Confort Magny-le-Hongre vous propose cette maison de 5 pièces de 90 m² et de 300 m² de terrain.
C'est une maison de 2 niveaux. Son intérieur comporte trois chambres, une cuisine et une salle de bains. La maison est neuve.
La maison se trouve dans un secteur prisé. Il y a des écoles de tous niveaux (de la maternelle au lycée) à moins de 10 minutes à pied, tout comme deux structures d'accueil pour la petite enfance. Niveau transports, on trouve le RER A, E et B ainsi que 26 gares à moins de 10 minutes en voiture. Il y a un bassin de natation, un tennis, des commerces, des boulangeries, trois supermarchés, deux supérettes et quatre boucheries-charcuteries dans les environs.
Son prix de vente est de 310 000 €.
Prenez contact avec notre agence (MELES Teddy : 06-17-56-83-36) pour plus d'informations sur le bien ou sur les démarches à suivre. Concrétisez vos projets immobiliers avec Maisons France Confort Magny-le-Hongre.
Annonce proposée par un Agent Commercial Partenaire.
Mentions légales
Terrain proposé par un partenaire foncier selon disponibilités et autorisation de publicité au prix de 220 000 €. Hors droit d'enregistrement et frais de notaire. Maison proposée, avec un contrat de construction de maison individuelle, dans le cadre de la loi du 19/12/1990, au prix de 90 000 € (Hors branchements et raccordements, papiers peints, peintures, revêtement de sol dans les chambres, qui sont chiffrés dans les travaux qui restent à charge du client. Tarif modifiable sans préavis). Étiquette énergie : A. Différents modèles disponibles pour ce terrain. Assurances et garanties du constructeur comprises (RC professionnelle, décennale, dommage ouvrage).Agence Maisons France Confort de Magny-le-Hongre (77700)
- Téléphone :
- 01 84 80 92 96
- Adressse :
- 11 rue de Courtalin
77700 Magny-le-Hongre, France
