Maison neuve à
Pontpoint
(60700) Référence :
FBpontpoint64_4
Prix du projet : Maison avec Terrain
prix 302 000 €
- 5 pièces
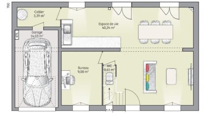
- 3 chambres
- Surface maison 90 m2
Pontpoint : maison de 5 pièces (90 m²) à vendre
EMPLACEMENT PRIVILÉGIÉ - MAISON 5 PIÈCES NEUVE
À quelques kilomètres de Compiègne, votre agence Maisons France Confort Beauvais est ravie de vous proposer cette maison de 5 pièces de 90 m² et de 530 m² de terrain bénéficiant d'un emplacement privilégié dans Pontpoint (60700). Son intérieur offre trois chambres, une cuisine et une salle de bains.
Il s'agit d'une maison de 2 niveaux. Elle est neuve.
Cette maison se situe dans un secteur recherché. Il y a l'École Primaire Massé-Chadufaux et l'École Primaire Rostand-Lhermite à moins de 10 minutes à pied. Niveau transports en commun, on trouve quatre gares à moins de 10 minutes en voiture. On trouve un accès à l'autoroute A1 à 4 km.
Elle est proposée à l'achat pour 302 000 €.
Contactez notre agence (BONELLO Fabrice : 06-09-50-50-09) pour toute question sur la maison. Maisons France Confort Beauvais est là pour vous accompagner dans toutes vos démarches.
Mentions légales
Terrain proposé par un partenaire foncier selon disponibilités et autorisation de publicité au prix de 90 000 €. Hors droit d'enregistrement et frais de notaire. Terrain + Maison proposés au prix de 302 000 € (Hors branchements et raccordements, papiers peints, peintures, revêtement de sol dans les chambres. Tarif modifiable sans préavis). Etiquette énergie : A. Différents modèles disponibles pour ce terrain. Assurances et garanties du constructeur (RC professionnelle, décennale, dommage ouvrage, garantie de remboursement de l'acompte, livraison à prix et délai convenu) : https://www.maisons-france-confort.fr/mentions-legales/. HEXAOM Services est enregistré auprès de l'ORIAS en tant que Courtier en financement, Niveau 1, sous le numéro 14001345.Agence Maisons France Confort de Beauvais (60000)
- Téléphone :
- 03 44 04 40 04
- Adressse :
- 42 rue Pierre Jacoby
60000 Beauvais, France
