Maison neuve à
Quincy-Voisins (77860) Référence : CY2400759_1

Prix du projet : Maison avec Terrain

prix 275 000 €

  • 5 pièces
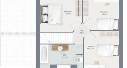
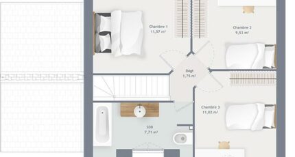
  • 3 chambres
  • Surface maison 80 m2

VENTE d'une maison de 5 pièces (80 m²) à Quincy-Voisins
IDÉALEMENT SITUÉE - MAISON 5 PIÈCES NEUVE
À proximité du Transilien P (gare d'Esbly, 30 min de Paris), Maisons France Confort Mareuil-lès-Meaux vous propose cette maison de 5 pièces de 80 m² idéalement située dans Quincy-Voisins (77860). Son intérieur compte trois chambres, une cuisine et une salle de bains.
Le terrain de la maison est de 190 m².
C'est une maison de 2 niveaux. Elle est neuve.
Ce bien se situe dans un quartier recherché. Des écoles maternelles et élémentaires sont implantées à moins de 10 minutes à pied. Niveau transports, il y a la ligne de RER A (Chessy-Marne-La-Vallée) ainsi que huit gares à moins de 10 minutes en voiture. On trouve un tennis, une bibliothèque, une boulangerie, trois commerces, une boucherie-charcuterie, une supérette et une épicerie à proximité.
Il est proposé à l'achat pour 275 000 €.
Contactez notre agence (YAHIAOUI Cedric : 06-66-57-00-63) pour toute information sur la maison, sur les modalités de vente ou sur les démarches à suivre.

Annonce proposée par un Agent Commercial Partenaire.

Mentions légales

Terrain proposé par un partenaire foncier selon disponibilités et autorisation de publicité au prix de 131 000 €. Hors droit d'enregistrement et frais de notaire. Terrain + Maison proposés au prix de 275 000 € (Hors branchements et raccordements, papiers peints, peintures, revêtement de sol dans les chambres. Tarif modifiable sans préavis). Etiquette énergie : A. Différents modèles disponibles pour ce terrain. Assurances et garanties du constructeur (RC professionnelle, décennale, dommage ouvrage, garantie de remboursement de l'acompte, livraison à prix et délai convenu) : https://www.maisons-france-confort.fr/mentions-legales/. HEXAOM Services est enregistré auprès de l'ORIAS en tant que Courtier en financement, Niveau 1, sous le numéro 14001345.

Contactez l'agence de Mareuil-lès-Meaux

01 60 09 28 30

    * Champs obligatoires

    Vos informations sont traitées par HEXAOM et transmises à un conseiller commercial qui vous contactera afin de répondre à votre demande. Les plans et images présentés sur notre site sont la propriété d’HEXAOM et ne peuvent pas être reproduits sans son accord. Pour retrouver notre politique de protection des données personnelles et exercer vos droits conformément à la « loi informatique et liberté » cliquez-ici.