Maison neuve à
Quincy-Voisins (77860) Référence : CY2400740_2

Prix du projet : Maison avec Terrain

prix 292 000 €

  • 5 pièces
  • 3 chambres
  • Surface maison 90 m2

Quincy-Voisins : maison F5 (90 m²) en vente
IDÉALEMENT SITUÉE - MAISON 5 PIÈCES NEUVE
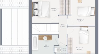
À vendre : à proximité de la gare d'Esbly (Paris à 30 min avec le Transilien P), nous sommes ravis de vous proposer, idéalement située dans Quincy-Voisins (77860), cette maison de 5 pièces de 90 m². Son intérieur dispose de trois chambres, d'une cuisine et d'une salle de bains.
Le terrain de la maison s'étend sur 186 m².
C'est une maison de 2 niveaux. Elle est neuve.
Cette propriété se situe dans un quartier recherché. Il y a des écoles maternelles et élémentaires à moins de 10 minutes à pied. Côté transports en commun, on trouve la ligne de RER A (Chessy-Marne-La-Vallée) ainsi que huit gares à moins de 10 minutes en voiture. On trouve un tennis, une bibliothèque, une boulangerie, trois commerces, une épicerie, un bureau de poste et une boucherie-charcuterie à quelques minutes.
Elle est à vendre pour la somme de 292 000 €.
Prenez contact avec notre agence (Cedric YAHIAOUI : 06-66-57-00-63) pour tout renseignement sur la maison. Maisons France Confort Mareuil-lès-Meaux est là pour vous accompagner à toutes les étapes de l'achat.

Annonce proposée par un Agent Commercial Partenaire.

Mentions légales

Terrain proposé par un partenaire foncier selon disponibilités et autorisation de publicité au prix de 130 000 €. Hors droit d'enregistrement et frais de notaire. Terrain + Maison proposés au prix de 292 000 € (Hors branchements et raccordements, papiers peints, peintures, revêtement de sol dans les chambres. Tarif modifiable sans préavis). Etiquette énergie : A. Différents modèles disponibles pour ce terrain. Assurances et garanties du constructeur (RC professionnelle, décennale, dommage ouvrage, garantie de remboursement de l'acompte, livraison à prix et délai convenu) : https://www.maisons-france-confort.fr/mentions-legales/. HEXAOM Services est enregistré auprès de l'ORIAS en tant que Courtier en financement, Niveau 1, sous le numéro 14001345.

Contactez l'agence de Mareuil-lès-Meaux

01 60 09 28 30

    * Champs obligatoires

    Vos informations sont traitées par HEXAOM et transmises à un conseiller commercial qui vous contactera afin de répondre à votre demande. Les plans et images présentés sur notre site sont la propriété d’HEXAOM et ne peuvent pas être reproduits sans son accord. Pour retrouver notre politique de protection des données personnelles et exercer vos droits conformément à la « loi informatique et liberté » cliquez-ici.