Maison neuve à
Saint-Lô
(50000) Référence :
JS2485533_2
Prix du projet : Maison avec Terrain
prix 220 000 €
- 7 pièces
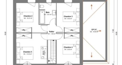
- 5 chambres
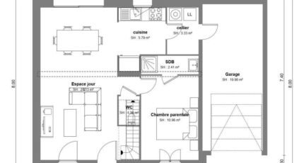
- Surface maison 102 m2
VENTE : maison F7 (102 m²) à Saint-Lô
IDÉALEMENT SITUÉE - MAISON 7 PIÈCES NEUVE
Maisons France Confort Bayeux vous propose cette maison de 7 pièces de 102 m² et de 471 m² de terrain idéalement située dans Saint-Lô (50000). Son intérieur se divise en cinq chambres, une cuisine et deux salles de bains.
Cette maison compte 2 niveaux. Elle est neuve.
Cette maison se situe dans un secteur prisé. Des écoles de tous niveaux sont implantées à moins de 10 minutes à pied, tout comme une crèche. Côté transports en commun, il y a deux gares (Saint-Lô et Pont-Hébert) à moins de 10 minutes en voiture. La nationale N174 est accessible à 2 km. On trouve un bowling, une bibliothèque, des commerces, des épiceries, un bureau de poste, une supérette et des boucheries-charcuteries à proximité. Enfin, le marché Place De Gaulle anime les environs.
Son prix de vente est de 220 000 €.
Contactez notre agence (HUE Emilie : 06-29-81-46-66) pour tout renseignement sur la maison. Maisons France Confort Bayeux vous accompagne à toutes les étapes de l'achat et dans toutes vos démarches.
Annonce proposée par un Agent Commercial Partenaire.
Mentions légales
Terrain proposé par un partenaire foncier selon disponibilités et autorisation de publicité au prix de 50 000 €. Hors droit d'enregistrement et frais de notaire. Terrain + Maison proposés au prix de 220 000 € (Hors branchements et raccordements, papiers peints, peintures, revêtement de sol dans les chambres. Tarif modifiable sans préavis). Etiquette énergie : A. Différents modèles disponibles pour ce terrain. Assurances et garanties du constructeur (RC professionnelle, décennale, dommage ouvrage, garantie de remboursement de l'acompte, livraison à prix et délai convenu) : https://www.maisons-france-confort.fr/mentions-legales/. HEXAOM Services est enregistré auprès de l'ORIAS en tant que Courtier en financement, Niveau 1, sous le numéro 14001345.Agence Maisons France Confort de Bayeux (14400)
- Téléphone :
- 02 31 51 20 91
- Adressse :
- 2, rue Saint Loup
14400 Bayeux, France
