Maison neuve à
Saint-Georges-Montcocq
(50000) Référence :
JS2485460_1
Prix du projet : Maison avec Terrain
prix 214 660 €
- 7 pièces
- 5 chambres
- Surface maison 102 m2
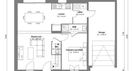
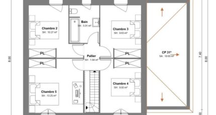
Maison F7 (102 m²) en vente à Saint-Georges-Montcocq
EMPLACEMENT PRIVILÉGIÉ - MAISON 7 PIÈCES NEUVE
Bénéficiant d'un emplacement d'exception dans Saint-Georges-Montcocq (50000), votre agence Maisons France Confort Bayeux est heureuse de vous présenter cette maison de 7 pièces de 102 m² et de 406 m² de terrain. Son intérieur est composé de cinq chambres, d'une cuisine et de deux salles de bains.
Cette maison compte 2 niveaux. Elle est neuve.
Le bien se situe dans un secteur prisé. On y trouve une école primaire. Côté transports, il y a les gares Saint-Lô et Pont-Hébert à moins de 10 minutes en voiture. Il y a un accès à la nationale N174 à 4 km. On trouve un tennis, un bowling, deux commerces et une boucherie-charcuterie à proximité.
Il est à vendre pour la somme de 214 660 €.
Contactez notre constructeur (Emilie HUE : 06-29-81-46-66) pour tout renseignement sur la maison. Maisons France Confort Bayeux vous accompagne à toutes les étapes de l'achat et dans tous vos projets immobiliers.
Annonce proposée par un Agent Commercial Partenaire.
Mentions légales
Terrain proposé par un partenaire foncier selon disponibilités et autorisation de publicité au prix de 44 660 €. Hors droit d'enregistrement et frais de notaire. Terrain + Maison proposés au prix de 214 660 € (Hors branchements et raccordements, papiers peints, peintures, revêtement de sol dans les chambres. Tarif modifiable sans préavis). Etiquette énergie : A. Différents modèles disponibles pour ce terrain. Assurances et garanties du constructeur (RC professionnelle, décennale, dommage ouvrage, garantie de remboursement de l'acompte, livraison à prix et délai convenu) : https://www.maisons-france-confort.fr/mentions-legales/. HEXAOM Services est enregistré auprès de l'ORIAS en tant que Courtier en financement, Niveau 1, sous le numéro 14001345.Agence Maisons France Confort de Bayeux (14400)
- Téléphone :
- 02 31 51 20 91
- Adressse :
- 2, rue Saint Loup
14400 Bayeux, France
